Проект одноэтажного дома SIP 4
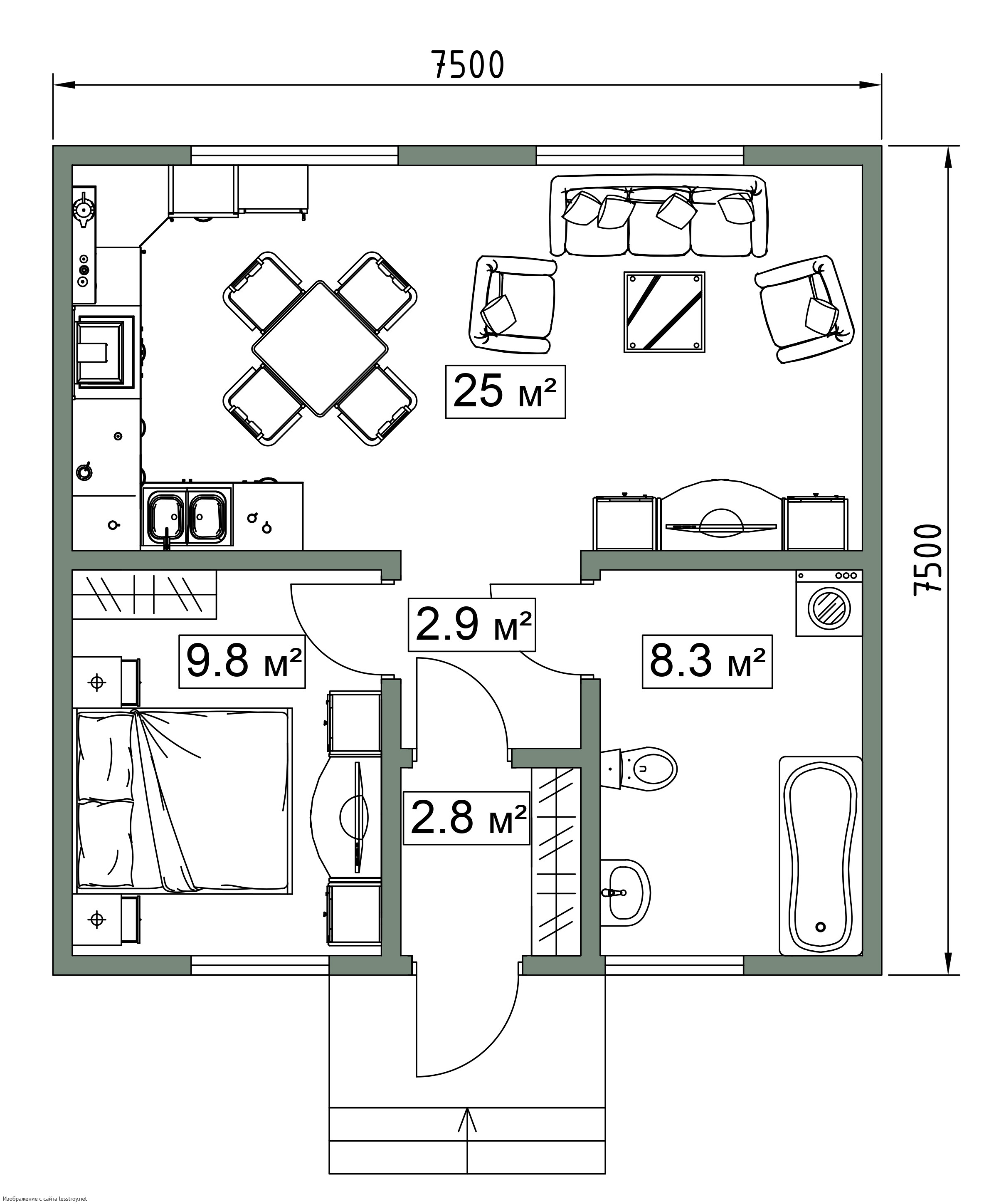
Площадь
48 м 2
Размер дома:
Этажей:
1
Спален:
1
Санузел:
0
Гараж:
Нет
Баня:
Нет
Терраса:
Нет
Панорамные окна:
Нет
Мастер-спальня:
Нет
О проекте
Дом, где можно наблюдать, как танцуют пылинки в солнечном луче.48 м² обеспечивают лёгкость и мобильность в повседневной жизни. Крыша из металлочерепица подчёркивает современный облик дома. В доме предусмотрено 1 спальня, что важно для комфорта. Выбор Каркас обусловлен его теплоизоляционными свойствами.Характеристики
- Общая площадь: 48 м2
- Количество этажей: 1
- Стиль, разновидность: Дома в стиле Минимализм
- Форма: Прямоугольные дома
- Тип кровли: Дома с двускатной крышей
- Отделка: Без отделки














