Проект двухэтажного дома Сильвия
Площадь
210 м 2
Размер дома:
Этажей:
2
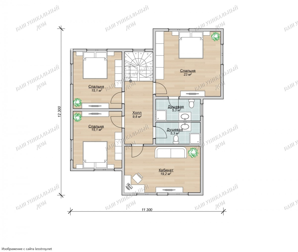
Спален:
4
Санузел:
0
Гараж:
Нет
Баня:
Нет
Терраса:
Нет
Панорамные окна:
Нет
Мастер-спальня:
Нет
О проекте
Проект, ставший материальным воплощением семейного счастья. Тёплый и уютный объём — 210 м². Стены из Каркас хорошо держат тепло и защищают от шума. Двухэтажная уютная планировка организует пространство максимально эффективно. Крыша из металлочерепица подчёркивает современный облик дома.Характеристики
- Общая площадь: 209.7 м2
- Количество этажей: 2
- Стиль, разновидность: Дома в ином стиле
- Форма: Широкие дома
- Тип кровли: Дома с шатровой крышей
- Отделка: Без отделки
Отправьте свои контакты и мы расчитаем вам смету
Скорее всего вам подойдут следующие проекты домов:
Дом подходит для:
Дом подходит для:
Дом подходит для:














