Проект двухэтажного дома СКПП-170
Дом подходит для:
Площадь
170 м 2
Размер дома:
12x12
Этажей:
2
Спален:
4
Санузел:
3
Гараж:
Нет
Баня:
Нет
Терраса:
Да
Панорамные окна:
Нет
Мастер-спальня:
Нет
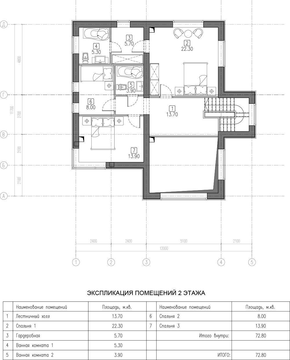
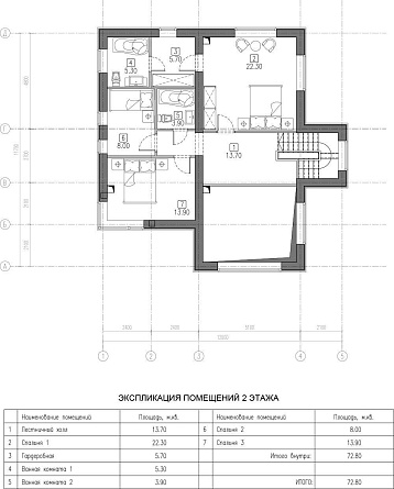
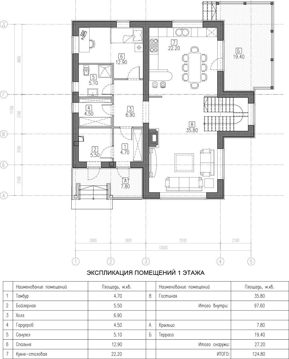
Планировка
Характеристики
- Общая площадь: 170 м2
- Жилая площадь: 129 м2
- Количество этажей: 2
- Гараж: нет
- Площадь кровли: 181 м2
- Форма: Квадратные дома
- Тип кровли: Дома с четырехскатной крышей (вальмовой)
- Пристрой: Дома с террасой
- Отделка: Без отделки
- Размер: 12x12
- Фундамент: Дома со свайным фундаментом
Материалы и перечень работ
- Свайно-ростверковый
- Внешние несущие стены: На выбор, газобетоннные, газосиликатные или керамзитобетонные блоки
- Межэтажное перекрытие: Сборный ж/б с монолитными участками
- Усиленная стропильная система. Несущие стропила 150х50, 200х50 мм по расчету, ригели 150х50 мм, контробрешетка 50х50 мм
- Гибкая черепица, металлочерепица
- Водосточная система: По периметру кровли
- В стоимость не входит
- В стоимость не входит
- Внешняя отделка: Декоративная штукатурка, облицовочный камень
- Свайно-ростверковый
- Внешние несущие стены: На выбор, газобетоннные, газосиликатные или керамзитобетонные блоки
- Межэтажное перекрытие: Сборный ж/б с монолитными участками
- Усиленная стропильная система. Несущие стропила 150х50, 200х50 мм по расчету, ригели 150х50 мм, контробрешетка 50х50 мм
- Гибкая черепица, металлочерепица
- Водосточная система: По периметру кровли
- В стоимость не входит
- В стоимость не входит
- Внешняя отделка: Декоративная штукатурка, облицовочный камень
Что еще входит в стоимость:
Отправьте свои контакты и мы расчитаем вам смету
Скорее всего вам подойдут следующие проекты домов:
Проект двухэтажного дома Дабл
Семья с двумя детьми
Дом подходит для:
Дом подходит для:
Проект двухэтажного дома Дом id-113739
Для большой семьи
Дом подходит для:
Дом подходит для:
Проект двухэтажного дома Дом id-124152
Семья с двумя детьми
Дом подходит для:
Дом подходит для:





















