Проект одноэтажного дома Степаньково
Дом подходит для:
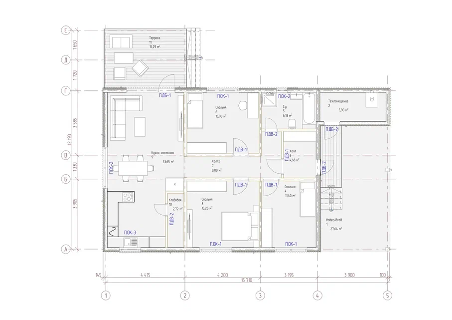
Площадь
145 м 2
Размер дома:
15,7x12,1
Этажей:
1
Спален:
3
Санузел:
1
Гараж:
Нет
Баня:
Нет
Терраса:
Нет
Панорамные окна:
Нет
Мастер-спальня:
Нет
Планировка
Фасады
О проекте
Вместительный дом площадью 145 м² с жилой зоной 74 м² создан для комфортной жизни большой семьи. Каркасная технология обеспечивает тепло и энергоэффективность, а продуманная планировка делает пространство функциональным. Здесь царит атмосфера уюта, а каждый метр продуман для вашего удобства.Характеристики
- Общая площадь: 145 м2
- Жилая площадь: 74 м2
- Количество этажей: 1
- Гараж: нет
- Высота дома: 5 м
- Площадь кровли: 216 м2
- Отделка: Под ключ
- Фундамент: Дома со свайным фундаментом
Материалы и перечень работ
- Забивные сваи 150х150х3000
- Деревянный каркас с утеплением 200 мм
- Металлочерепица ГрандЛайн 0,5 Сатин
- Окна и двери ПВХ с ламинацией, профиль 70 мм, трехкамерный стеклопакет.
- Разводка систем водоснабжения, канализации, отопления, естественной вентиляции и электрики.
- Котельная в сборе.
- Металлосайдинг ГрандЛайн кватро Брус.
- Забивные сваи 150х150х3000
- Деревянный каркас с утеплением 200 мм
- Металлочерепица ГрандЛайн 0,5 Сатин
- Окна и двери ПВХ с ламинацией, профиль 70 мм, трехкамерный стеклопакет.
- Разводка систем водоснабжения, канализации, отопления, естественной вентиляции и электрики.
- Котельная в сборе.
- Металлосайдинг ГрандЛайн кватро Брус.
Что еще входит в стоимость:
Отправьте свои контакты и мы расчитаем вам смету
Скорее всего вам подойдут следующие проекты домов:
Дом подходит для:
Проект одноэтажного дома Проект 7015 - каркасный дом по финской технологии
Для большой семьи
Дом подходит для:
Дом подходит для:
Дом подходит для:














