Проект одноэтажного дома SX - 125
Дом подходит для:
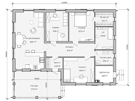
Площадь
152 м 2
Размер дома:
15 х 13
Этажей:
1
Спален:
3
Санузел:
2
Гараж:
Нет
Баня:
Нет
Терраса:
Нет
Панорамные окна:
Нет
Мастер-спальня:
Нет
Планировка
Фасады
О проекте
Интерьер этого дома площадью 152 м² — это сочетание воздушности и душевности, создающее уют. Жилая площадь 112 м² идеально подходит для семьи с двумя детьми, предлагая свет и простор. Газобетон в стенах добавляет дому надежности и тепла, делая его практичным и современным. Это место, где царит покой, а пространство радует своей гармонией.Характеристики
- Общая площадь: 152 м2
- Жилая площадь: 112 м2
- Количество этажей: 1
- Гараж: нет
- Площадь кровли: 156 м2
- Отделка: Без отделки
- Фундамент: Дома с плитным фундаментом
Материалы и перечень работ
- Утепленная монолитная плита с ребрами жесткости
- общая высота цоколя - 500мм над ур.з.
- толщина плиты 200мм, двойная арматурная сетка из арматуры Ø12 (ячейка 200мм)
- ребра жесткости размером 400х400мм под несущие стены (рабочая арматура Ø12 шаг 200мм, конструктивная арматура Ø8 шаг 400мм)
- утепление внешнего контура (цоколя) - Теплоизоляционные плиты LOGICPIR Технониколь 30мм
- газобетонный блок YTONG (ISTKULT) толщиной 375мм
- газобетонный блок YTONG (ISTKULT) толщиной 375мм
- армирование арматурой Ø8 в соответствии с тех.картой производителя
- устройство утепленного монолитного пояса 200х200мм по периметру стен (под опирание перекрытий)
- металлочерепица толщиной 0,5мм - покрытие VELUR/Стальной бархат (комплект) (возможны и другие варианты)
- стропильная система - пиломатериал 200х50мм, естественной влажности (ГОСТ). Шаг стропил - 630мм
- поперечное усиление крайних стропил, формирующих свес кровли
- контр-обрешетка для обеспечения воздухообмена - строганный брусок 50х50мм
- обрешетка под монтаж покрытия кровли - доска 100х25мм, шаг 200мм
- Оконные изделия - 5тикамерный профиль REHAU GRAZIO, энергосберегающий стеклопакет.
- Входная утепленная стальная дверь с "глазком" и фурнитурой (производство: Россия)
- монтаж утепленной канализационной магистрали под фундаментом с выводами точек
- ввод утепленной водопроводной трубы в техническое помещение, с учетом греющего кабеля по всей высоте
- ввод электрического кабеля к месту установки щитка
- учет необходимых технологических отверстий для обустройства вентиляции в доме
- кладка на клеевую смесь
- армирование арматурой Ø8 в соответствии с тех.картой производителя
- устройство утепленного монолитного пояса 200х200мм по периметру стен (под опирание перекрытий)
- Утепленная монолитная плита с ребрами жесткости
- общая высота цоколя - 500мм над ур.з.
- толщина плиты 200мм, двойная арматурная сетка из арматуры Ø12 (ячейка 200мм)
- ребра жесткости размером 400х400мм под несущие стены (рабочая арматура Ø12 шаг 200мм, конструктивная арматура Ø8 шаг 400мм)
- утепление внешнего контура (цоколя) - Теплоизоляционные плиты LOGICPIR Технониколь 30мм
- газобетонный блок YTONG (ISTKULT) толщиной 375мм
- газобетонный блок YTONG (ISTKULT) толщиной 375мм
- армирование арматурой Ø8 в соответствии с тех.картой производителя
- устройство утепленного монолитного пояса 200х200мм по периметру стен (под опирание перекрытий)
- металлочерепица толщиной 0,5мм - покрытие VELUR/Стальной бархат (комплект) (возможны и другие варианты)
- стропильная система - пиломатериал 200х50мм, естественной влажности (ГОСТ). Шаг стропил - 630мм
- поперечное усиление крайних стропил, формирующих свес кровли
- контр-обрешетка для обеспечения воздухообмена - строганный брусок 50х50мм
- обрешетка под монтаж покрытия кровли - доска 100х25мм, шаг 200мм
- Оконные изделия - 5тикамерный профиль REHAU GRAZIO, энергосберегающий стеклопакет.
- Входная утепленная стальная дверь с "глазком" и фурнитурой (производство: Россия)
- монтаж утепленной канализационной магистрали под фундаментом с выводами точек
- ввод утепленной водопроводной трубы в техническое помещение, с учетом греющего кабеля по всей высоте
- ввод электрического кабеля к месту установки щитка
- учет необходимых технологических отверстий для обустройства вентиляции в доме
- кладка на клеевую смесь
- армирование арматурой Ø8 в соответствии с тех.картой производителя
- устройство утепленного монолитного пояса 200х200мм по периметру стен (под опирание перекрытий)
Что еще входит в стоимость:
Отправьте свои контакты и мы расчитаем вам смету
Скорее всего вам подойдут следующие проекты домов:
Проект одноэтажного дома Гранд
Семья с одним ребенком
Дом подходит для:
Дом подходит для:
Проект одноэтажного дома Софт
Семья с двумя детьми
Дом подходит для:
Дом подходит для:
Проект одноэтажного дома Дом id-119459
Для большой семьи
Дом подходит для:
Дом подходит для:



















