Проект двухэтажного дома Таунхаус 320
Площадь
320 м 2
Размер дома:
Этажей:
2
Спален:
4
Санузел:
0
Гараж:
Нет
Баня:
Нет
Терраса:
Нет
Панорамные окна:
Нет
Мастер-спальня:
Нет
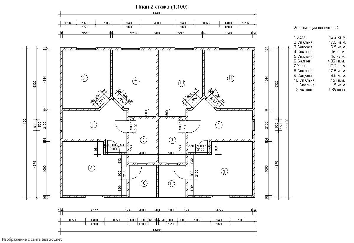
О проекте
Просторный таунхаус площадью 320 м² — это современное и комфортное жилье. Четыре спальни и два этажа создают удобное пространство. Каркасная конструкция обеспечивает легкость и надежность. Отличный вариант для городской жизни.Характеристики
- Общая площадь: 320 м2
- Количество этажей: 2
- Стиль, разновидность: Дома в стиле Шале
- Форма: Прямоугольные дома
- Тип кровли: Дома с мансардной крышей
- Отделка: Без отделки
Отправьте свои контакты и мы расчитаем вам смету
Скорее всего вам подойдут следующие проекты домов:
Дом подходит для:
Дом подходит для:
Дом подходит для:












