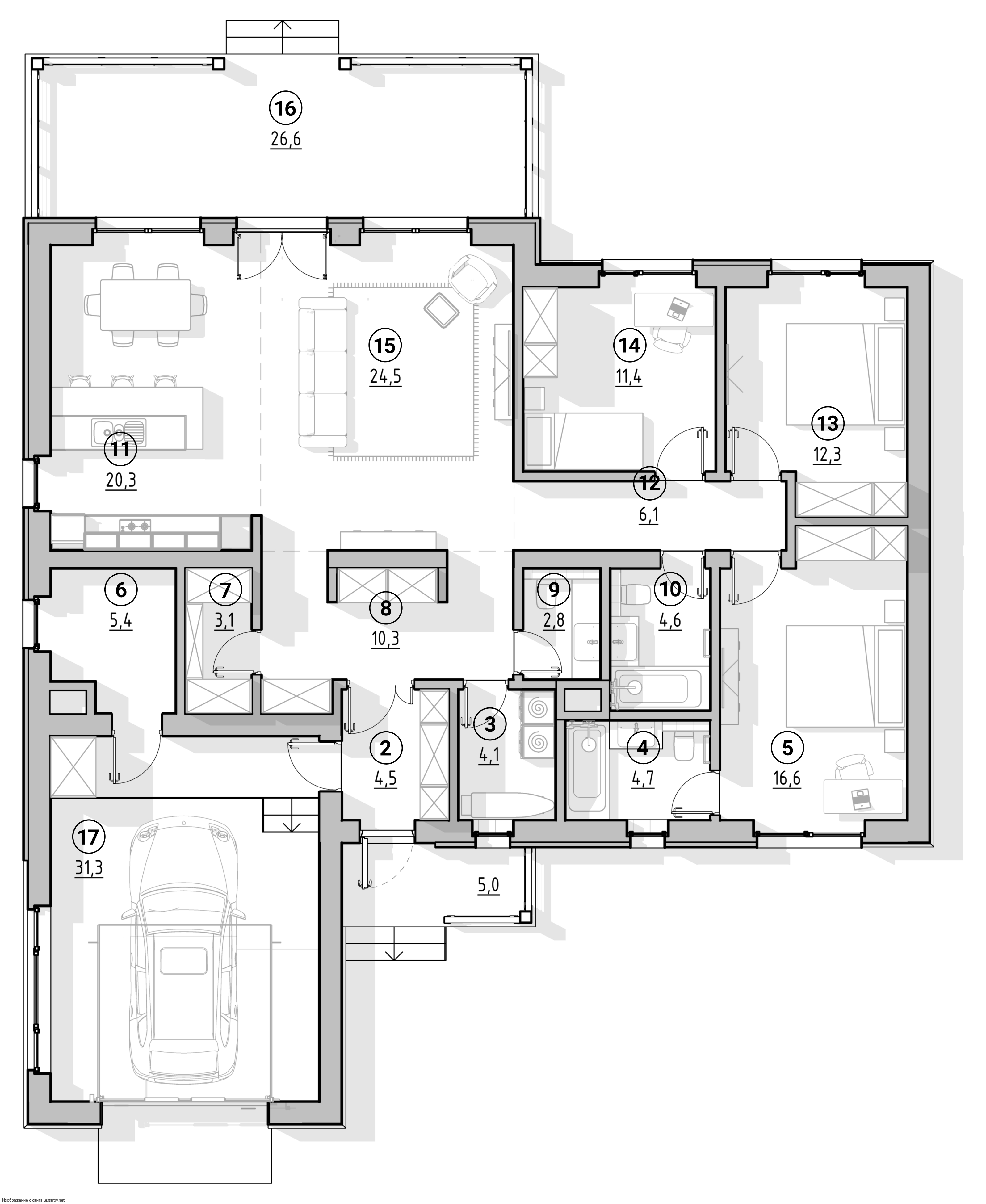
Проект одноэтажного дома Тип 20-КБ
Площадь
193 м 2
Размер дома:
Этажей:
1
Спален:
3
Санузел:
0
Гараж:
Нет
Баня:
Нет
Терраса:
Нет
Панорамные окна:
Нет
Мастер-спальня:
Нет
О проекте
Архитектура, ставшая продолжением вашего характера. 193 м² — дом не теряет индивидуальности. Керамоблока делает дом надёжным при любой погоде. Крыша из металлочерепица подчёркивает современный облик дома. Одноэтажная грамотная планировка организует пространство максимально эффективно.Характеристики
- Общая площадь: 193 м2
- Количество этажей: 1
- Стиль, разновидность: Дома в стиле Хай тек
- Форма: Прямоугольные дома
- Тип кровли: Дома с многощипцовой крышей
- Отделка: Без отделки
Отправьте свои контакты и мы расчитаем вам смету
Скорее всего вам подойдут следующие проекты домов:
Дом подходит для:
Дом подходит для:
Проект одноэтажного дома ТК-165
Семья с одним ребенком
Дом подходит для:
Дом подходит для:














