Проект двухэтажного дома Тор
Дом подходит для:
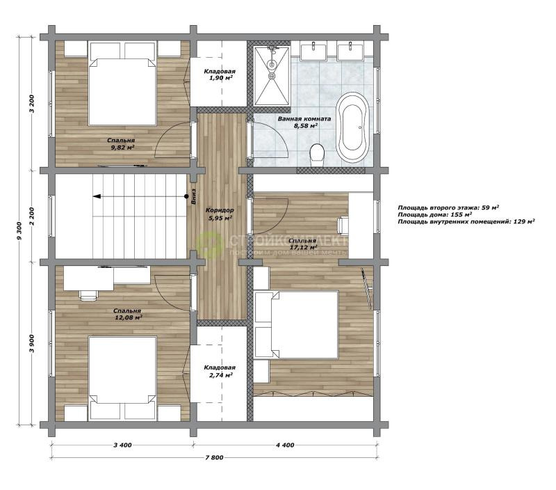
Площадь
155 м 2
Размер дома:
11х12,2
Этажей:
2
Спален:
4
Санузел:
2
Гараж:
Нет
Баня:
Нет
Терраса:
Нет
Панорамные окна:
Нет
Мастер-спальня:
Нет
Планировка
Характеристики
- Общая площадь: 155 м2
- Жилая площадь: 109 м2
- Количество этажей: 2
- Гараж: нет
- Площадь кровли: 161 м2
- Отделка: Без отделки
Материалы и перечень работ
- Фундамент из жб свай или плита по желанию заказчика (за дополнительную плату)
- Домокомплект со сборкой из клееного бруса
- Балки перекрытия сухие строганные или клееные
- Металлочерепица
- Стропильная система сухая строганная
- Утепление кровли 200 мм
- В стоимость не входит
- В стоимость не входит
- Клееная окосячка оконных и дверных проемов с четвертью.
- Фундамент из жб свай или плита по желанию заказчика (за дополнительную плату)
- Домокомплект со сборкой из клееного бруса
- Балки перекрытия сухие строганные или клееные
- Металлочерепица
- Стропильная система сухая строганная
- Утепление кровли 200 мм
- В стоимость не входит
- В стоимость не входит
- Клееная окосячка оконных и дверных проемов с четвертью.
Что еще входит в стоимость:
Отправьте свои контакты и мы расчитаем вам смету
Скорее всего вам подойдут следующие проекты домов:
Дом подходит для:
Дом подходит для:
Дом подходит для:











