Проект двухэтажного дома Trend X161 TK
Дом подходит для:
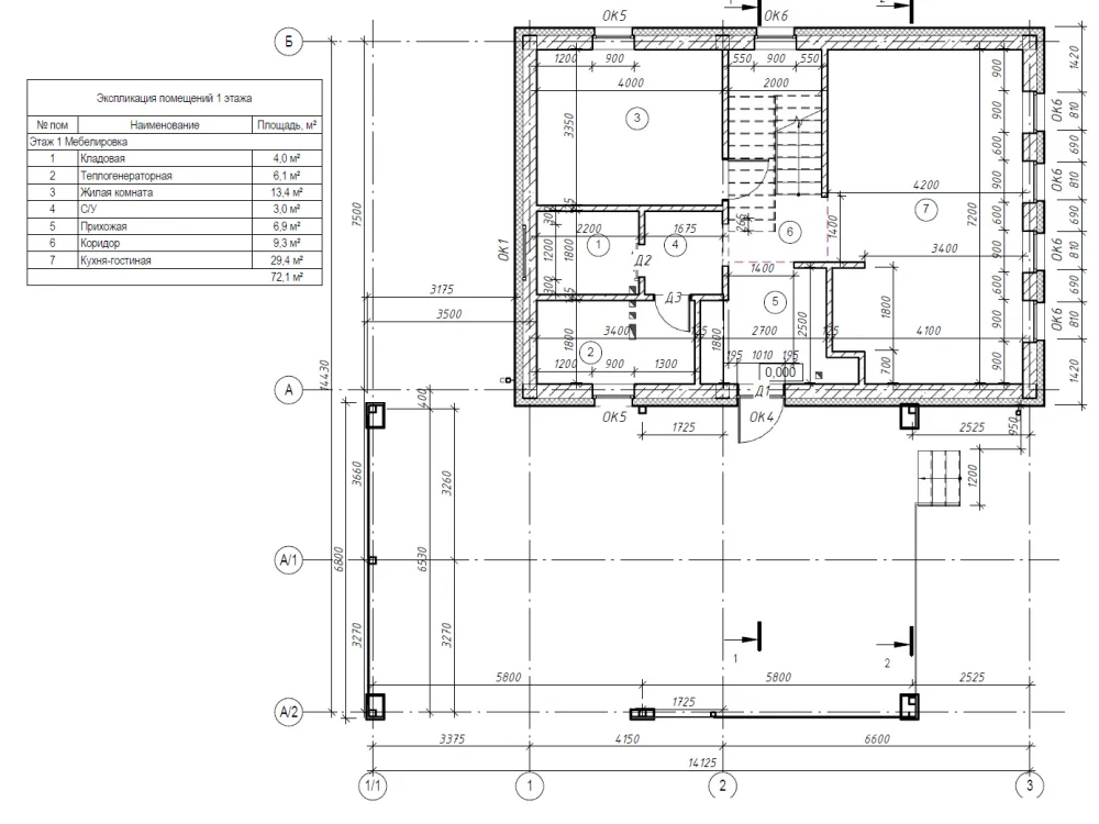
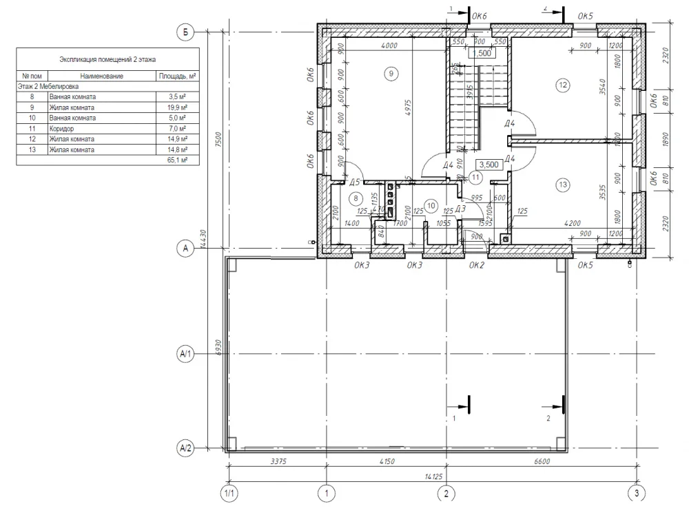
Площадь
161 м 2
Размер дома:
14,4х14,1
Этажей:
2
Спален:
4
Санузел:
3
Гараж:
Нет
Баня:
Нет
Терраса:
Нет
Панорамные окна:
Нет
Мастер-спальня:
Нет
Планировка
Характеристики
- Общая площадь: 161 м2
- Жилая площадь: 123 м2
- Количество этажей: 2
- Гараж: нет
- Площадь кровли: 161 м2
- Отделка: Без отделки
Материалы и перечень работ
- Уютный и достаточно просторный одноэтажный дом для проживания дружной семьи на протяжении всего года. Благодаря грамотной планировке, дом станет лучшим местом, в котором приходилось жить его обитателям.
- Перекрытия пустотная ЖБ плита безопалубочного формования, 220мм, несущая способность от 800кг/м2; монолитный участки по проекту
- Внешние стены - газобетонный/полистиролбетонный блок D400 толщиной 300-400 мм (по проекту)
- Перегородки из газобетонных блоков D500 толщиной 100-125 мм (по проекту)
- Утепление 150мм ЭППС, устройство уклонов, устройство гидроизоляции наплавляемой/напыляемой/ устройство парапетного водоотведения
- Перекрытие кровельное - ЖБ плита безопалубочного формования, 220мм, несущая способность от 800кг/м2; монолитные участки по проекту
- Устройство парапета из кирпича
- Устройство парапетных крышек из оцинкованного/окрашенного металла
- Окна и балконные двери пластиковые, профиль VEKA с двухкамерным энергоэффективным стеклопакетом (3 стекла), белые
- В стоимость не входит
- Утепление фасада и декоративное штукатурное покрытие (индивидуальные варианты отделки рассчитываются отдельно)
- Уютный и достаточно просторный одноэтажный дом для проживания дружной семьи на протяжении всего года. Благодаря грамотной планировке, дом станет лучшим местом, в котором приходилось жить его обитателям.
- Перекрытия пустотная ЖБ плита безопалубочного формования, 220мм, несущая способность от 800кг/м2; монолитный участки по проекту
- Внешние стены - газобетонный/полистиролбетонный блок D400 толщиной 300-400 мм (по проекту)
- Перегородки из газобетонных блоков D500 толщиной 100-125 мм (по проекту)
- Утепление 150мм ЭППС, устройство уклонов, устройство гидроизоляции наплавляемой/напыляемой/ устройство парапетного водоотведения
- Перекрытие кровельное - ЖБ плита безопалубочного формования, 220мм, несущая способность от 800кг/м2; монолитные участки по проекту
- Устройство парапета из кирпича
- Устройство парапетных крышек из оцинкованного/окрашенного металла
- Окна и балконные двери пластиковые, профиль VEKA с двухкамерным энергоэффективным стеклопакетом (3 стекла), белые
- В стоимость не входит
- Утепление фасада и декоративное штукатурное покрытие (индивидуальные варианты отделки рассчитываются отдельно)
Что еще входит в стоимость:
Отправьте свои контакты и мы расчитаем вам смету
Скорее всего вам подойдут следующие проекты домов:
Проект двухэтажного дома Дом id-67396
Для большой семьи
Дом подходит для:
Дом подходит для:
Проект двухэтажного дома Дом id-124152
Семья с двумя детьми
Дом подходит для:
Дом подходит для:
Проект двухэтажного дома Дом id-124459
Семья с двумя детьми
Дом подходит для:
Дом подходит для:
























