Проект двухэтажного дома Вега-5
Дом подходит для:
Площадь
128 м 2
Размер дома:
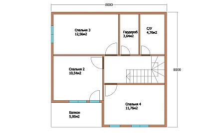
8x8
Этажей:
2
Спален:
4
Санузел:
2
Гараж:
Нет
Баня:
Нет
Терраса:
Да
Панорамные окна:
Нет
Мастер-спальня:
Нет
Планировка
Фасады
О проекте
Просторный двухэтажный дом площадью 128 м² создан для тех, кто ценит семейный уют и комфорт. 102 м² жилой зоны организованы с умом, создавая атмосферу тепла и защищенности. Каркасная технология обеспечивает энергоэффективность, а натуральные материалы наполняют пространство природной гармонией. Это дом, где каждая деталь продумана для размеренной семейной жизни.Характеристики
- Общая площадь: 128 м2
- Жилая площадь: 102 м2
- Количество этажей: 2
- Гараж: нет
- Площадь кровли: 136 м2
- Форма: Квадратные дома
- Тип кровли: Дома с многощипцовой крышей
- Пристрой: Дома с верандой
- Отделка: С черновой отделкой
- Размер: 8x8
Материалы и перечень работ
- В стоимость не входит
- Внешние каркасные стены 40*150мм без утепления
- Внутренние каркасные стены 40*100мм без утепления
- Стропильная система из доски 40*150мм.
- Кровельное покрытие "Металлочерепица 0,4"
- Окна ПВХ, белые, 1-кам. С/П.
- Входная металлическая дверь, Российского производства
- В стоимость не входит
- Обшивка снаружи ОСБ-3 плитой 9мм
- В стоимость не входит
- Внешние каркасные стены 40*150мм без утепления
- Внутренние каркасные стены 40*100мм без утепления
- Стропильная система из доски 40*150мм.
- Кровельное покрытие "Металлочерепица 0,4"
- Окна ПВХ, белые, 1-кам. С/П.
- Входная металлическая дверь, Российского производства
- В стоимость не входит
- Обшивка снаружи ОСБ-3 плитой 9мм
Что еще входит в стоимость:
Отправьте свои контакты и мы расчитаем вам смету
Скорее всего вам подойдут следующие проекты домов:
Дом подходит для:
Дом подходит для:
Дом подходит для:










