Проект одноэтажного дома Венеция
Дом подходит для:
Площадь
80 м 2
Размер дома:
10х8
Этажей:
1
Спален:
2
Санузел:
1
Гараж:
Нет
Баня:
Нет
Терраса:
Нет
Панорамные окна:
Нет
Мастер-спальня:
Нет
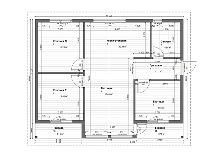
Планировка
Фасады
О проекте
Уютный дом из строганного бруса площадью 80 м² — место, где царит покой и гармония. Жилая зона 64 м² наполнена светом и теплом, создавая ощущение уюта. Металлочерепица на крыше обеспечивает надежность, а две спальни делают пространство удобным. Идеальный вариант для тех, кто ценит естественность и комфорт.Характеристики
- Общая площадь: 80 м2
- Жилая площадь: 64 м2
- Количество этажей: 1
- Гараж: нет
- Площадь кровли: 84 м2
- Отделка: Без отделки
- Фундамент: Дома со свайно-винтовым фундаментом
Материалы и перечень работ
- Свайно-винтовой 108Х2500мм
- Основание брус 140х140мм первый сорт гост сухой строганный
- Каркас доска 190х45мм\195х45мм
- Огнезащита основания дома биозелест/неомид
- Ветровлагозащита\пароизоляция ondutiss
- Утепление 200мм izobel или аналог(+-25кг на м2)
- Отделка внутри имитация бруса 140/16
- Кровельное покрытие S 0.45мм
- Двери межкомнатные artens( улучшенные мдф)
- Входная дверь металлическая
- Окна ПВХ brusbox 70-й профиль
- В стоимость не входит
- Отделка снаружи имитация бруса 140/16/виниловый сайдинг технониколь по osb-9mm
- Свайно-винтовой 108Х2500мм
- Основание брус 140х140мм первый сорт гост сухой строганный
- Каркас доска 190х45мм\195х45мм
- Огнезащита основания дома биозелест/неомид
- Ветровлагозащита\пароизоляция ondutiss
- Утепление 200мм izobel или аналог(+-25кг на м2)
- Отделка внутри имитация бруса 140/16
- Кровельное покрытие S 0.45мм
- Двери межкомнатные artens( улучшенные мдф)
- Входная дверь металлическая
- Окна ПВХ brusbox 70-й профиль
- В стоимость не входит
- Отделка снаружи имитация бруса 140/16/виниловый сайдинг технониколь по osb-9mm
Что еще входит в стоимость:
Отправьте свои контакты и мы расчитаем вам смету
Скорее всего вам подойдут следующие проекты домов:
Дом подходит для:
Дом подходит для:
Дом подходит для:








