Проект двухэтажного дома Верея
Дом подходит для:
Площадь
189 м 2
Размер дома:
11x11
Этажей:
2
Спален:
3
Санузел:
2
Гараж:
Нет
Баня:
Нет
Терраса:
Нет
Панорамные окна:
Нет
Мастер-спальня:
Нет
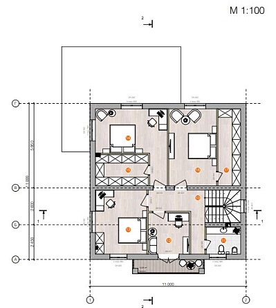
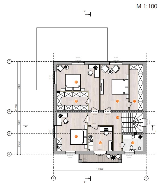
Планировка
Фасады
О проекте
Верея — компактный кирпичный дом площадью 189 м² с жилыми 94 м², где уют и практичность идут рука об руку. Большие окна наполняют пространство светом, а надежные стены защищают от холода и шума. Металлочерепица придает фасаду выразительность, а продуманная отделка создает уютную атмосферу. Это дом для тех, кто ценит гармонию и удобство.Характеристики
- Общая площадь: 189 м2
- Жилая площадь: 94 м2
- Количество этажей: 2
- Гараж: нет
- Площадь кровли: 199 м2
- Форма: Квадратные дома
- Тип кровли: Дома с многощипцовой крышей
- Пристрой: Дома с балконом
- Отделка: White box
- Отделка фасада: Дома с отделкой клинкерной плиткой
- Фундамент: Дома с плитным фундаментом
- Класс дома: Дома класса Стандарт
Материалы и перечень работ
- Утепленная монолитная плита с усиленными ребрами жесткостями под несущие стены
- Разделяющий слой из геотекстиля (Такая прослойка станет надежным барьером и предотвратит смешивание песка и его заиливание);
- Песчаная подушка с послойным трамбованием;
- Теплоизоляция фундамента и грунта под зданием (ЭППС 50мм)
- Бетон В25 (М350) сертифицированный;
- Несущие стены толщиной 300 мм, благодаря высоким теплотехническим свойствам с учетом внешней отделки (кирпичная кладка/утепленные панели под кирпич) проходят норму теплосопротивляемости и не нуждаются в дополнительном утеплении.
- Изготовление ж/б армопояса соответствует требования СНиП, что позволяет выдерживать большие нагрузки и распределять их равномерно;
- Армопояс утеплен и исключает мостики холода.
- Перекрытия из железобетонных плит заводского изготовления. Расчетная прочность которых в 5 раз выше, чем деревянное перекрытия из бруса.
- Покрытие кровли - металлочерепица Grandline с полимерным покрытием Satin
- Стропильная система Брус естественной влажности, по ГОСТ. Размер сечения 50 х 200 мм.
- Гидро-ветрозащитная мембрана
- Многослойная паронепроницаемая армированная плёнка из полиэтилена. С алюминиевым рефлексным слоем, защищённым прозрачным полиэфирным покрытием.
- В стоимость не входит
- В стоимость не входит
- В стоимость не входит
- Утепленная монолитная плита с усиленными ребрами жесткостями под несущие стены
- Разделяющий слой из геотекстиля (Такая прослойка станет надежным барьером и предотвратит смешивание песка и его заиливание);
- Песчаная подушка с послойным трамбованием;
- Теплоизоляция фундамента и грунта под зданием (ЭППС 50мм)
- Бетон В25 (М350) сертифицированный;
- Несущие стены толщиной 300 мм, благодаря высоким теплотехническим свойствам с учетом внешней отделки (кирпичная кладка/утепленные панели под кирпич) проходят норму теплосопротивляемости и не нуждаются в дополнительном утеплении.
- Изготовление ж/б армопояса соответствует требования СНиП, что позволяет выдерживать большие нагрузки и распределять их равномерно;
- Армопояс утеплен и исключает мостики холода.
- Перекрытия из железобетонных плит заводского изготовления. Расчетная прочность которых в 5 раз выше, чем деревянное перекрытия из бруса.
- Покрытие кровли - металлочерепица Grandline с полимерным покрытием Satin
- Стропильная система Брус естественной влажности, по ГОСТ. Размер сечения 50 х 200 мм.
- Гидро-ветрозащитная мембрана
- Многослойная паронепроницаемая армированная плёнка из полиэтилена. С алюминиевым рефлексным слоем, защищённым прозрачным полиэфирным покрытием.
- В стоимость не входит
- В стоимость не входит
- В стоимость не входит
Что еще входит в стоимость:
Отправьте свои контакты и мы расчитаем вам смету
Скорее всего вам подойдут следующие проекты домов:
Проект двухэтажного дома Исаково
Семья с одним ребенком
Дом подходит для:
Дом подходит для:
Проект двухэтажного дома Ельдигино
Для большой семьи
Дом подходит для:
Дом подходит для:
Проект двухэтажного дома Архангельское
Для большой семьи
Дом подходит для:
Дом подходит для:










