Проект одноэтажного дома Викар
Дом подходит для:
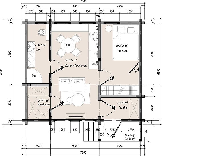
Площадь
51 м 2
Размер дома:
8x8
Этажей:
1
Спален:
2
Санузел:
1
Гараж:
Нет
Баня:
Нет
Терраса:
Нет
Панорамные окна:
Нет
Мастер-спальня:
Нет
Планировка
Характеристики
- Общая площадь: 51 м2
- Жилая площадь: 28 м2
- Количество этажей: 1
- Гараж: нет
- Площадь кровли: 56 м2
- Отделка: Без отделки
- Размер: 8x8
Материалы и перечень работ
- В базовую стоимость не входит, рассчитывается отдельно. Возможные варианты: опорно-столбчатый из бетонных блоков, свайно-винтовой, железобетнные сваи, ленточный, монолитная плита.
- Обвязка - 2 нижних венца из нестроганного бруса. Толщина сечения согласно выбранной толщины наружных стен (100х150 мм, 150х150 мм или 200х150 мм).
- Лаги пола Обрезная доска 50х150 мм с шагом укладки не более 600 мм.
- Профилированный брус 90х140, 140х140 или 190х140 мм. Форма сечения на выбор: прямоугольная или закругленная с внешней стороны.
- Между венцами проф. бруса прокладывается льноджутовый утеплитель. Сборка осуществляется на металлические нагеля (гвозди 200 мм). В качестве дополнительной услуги - сборка на берёзовые нагеля.
- Рубка наружных стен и внутренних перегородок осуществляется в "тёплый угол" (шип-паз).
- Перегородки прямой профилированный брус из древесины хвойных пород естественной влажности 90х140 мм.
- Стропила нестроганная доска естественной влажности 40х100 мм с шагом не более 900 мм.
- Обрешетка одинарная, из обрезной доски естественной влажности 22 мм.
- Форма крыши согласно проекту. Высота конька - 1.5 - 2.0 м (согласно проекту). Кровельный материал - ондулин (красный, коричневый или зеленый). Прокладывается ветроизоляционная мембрана "Изоспан А".
- Фронтоны каркасные с прокладкой ветрозащитной мембраны "Изоспан А". Снаружи обшиваются вагонкой 14 мм класса "В" камерной сушки. Поднебесники по скату и по фронтону шириной 270 мм.
- Деревянные окна двойного остекления из сосны, толщиной бруска 46 мм. Два стекла через деревянную планку 3х10х3 мм. Стекла герметично просиликонены. Фурнитура поворотная. В комплекте ручки. Размеры и количество - согласно проекту.
- Двери Деревянные филенчатые из сосны без фурнитуры.
- Дверь Металлическая утепленная. Производство - Китай. Монтируются обсадные бруски.
- В стоимость не входит
- Пол и потолок утепляется минеральной ватой Knauf 50 мм. Доп. услуга - увеличение толщины утеплителя.
- С обеих сторон утеплителя (пол, потолок) протягиваются изоляционные мембраны Isospan или аналог. С внешней стороны - ветроизоляция. С внутренней стороны - пароизоляция.
- В базовую стоимость не входит, рассчитывается отдельно. Возможные варианты: опорно-столбчатый из бетонных блоков, свайно-винтовой, железобетнные сваи, ленточный, монолитная плита.
- Обвязка - 2 нижних венца из нестроганного бруса. Толщина сечения согласно выбранной толщины наружных стен (100х150 мм, 150х150 мм или 200х150 мм).
- Лаги пола Обрезная доска 50х150 мм с шагом укладки не более 600 мм.
- Профилированный брус 90х140, 140х140 или 190х140 мм. Форма сечения на выбор: прямоугольная или закругленная с внешней стороны.
- Между венцами проф. бруса прокладывается льноджутовый утеплитель. Сборка осуществляется на металлические нагеля (гвозди 200 мм). В качестве дополнительной услуги - сборка на берёзовые нагеля.
- Рубка наружных стен и внутренних перегородок осуществляется в "тёплый угол" (шип-паз).
- Перегородки прямой профилированный брус из древесины хвойных пород естественной влажности 90х140 мм.
- Стропила нестроганная доска естественной влажности 40х100 мм с шагом не более 900 мм.
- Обрешетка одинарная, из обрезной доски естественной влажности 22 мм.
- Форма крыши согласно проекту. Высота конька - 1.5 - 2.0 м (согласно проекту). Кровельный материал - ондулин (красный, коричневый или зеленый). Прокладывается ветроизоляционная мембрана "Изоспан А".
- Фронтоны каркасные с прокладкой ветрозащитной мембраны "Изоспан А". Снаружи обшиваются вагонкой 14 мм класса "В" камерной сушки. Поднебесники по скату и по фронтону шириной 270 мм.
- Деревянные окна двойного остекления из сосны, толщиной бруска 46 мм. Два стекла через деревянную планку 3х10х3 мм. Стекла герметично просиликонены. Фурнитура поворотная. В комплекте ручки. Размеры и количество - согласно проекту.
- Двери Деревянные филенчатые из сосны без фурнитуры.
- Дверь Металлическая утепленная. Производство - Китай. Монтируются обсадные бруски.
- В стоимость не входит
- Пол и потолок утепляется минеральной ватой Knauf 50 мм. Доп. услуга - увеличение толщины утеплителя.
- С обеих сторон утеплителя (пол, потолок) протягиваются изоляционные мембраны Isospan или аналог. С внешней стороны - ветроизоляция. С внутренней стороны - пароизоляция.
Что еще входит в стоимость:
Отправьте свои контакты и мы расчитаем вам смету
Скорее всего вам подойдут следующие проекты домов:
Дом подходит для:
Дом подходит для:
Проект одноэтажного дома Дом из бруса по проекту «Макадамия»
Семья с одним ребенком
Дом подходит для:
Дом подходит для:











