Проект двухэтажного дома Вилла M
Дом подходит для:
Площадь
132 м 2
Размер дома:
9x9
Этажей:
2
Спален:
3
Санузел:
2
Гараж:
Нет
Баня:
Нет
Терраса:
Нет
Панорамные окна:
Нет
Мастер-спальня:
Нет
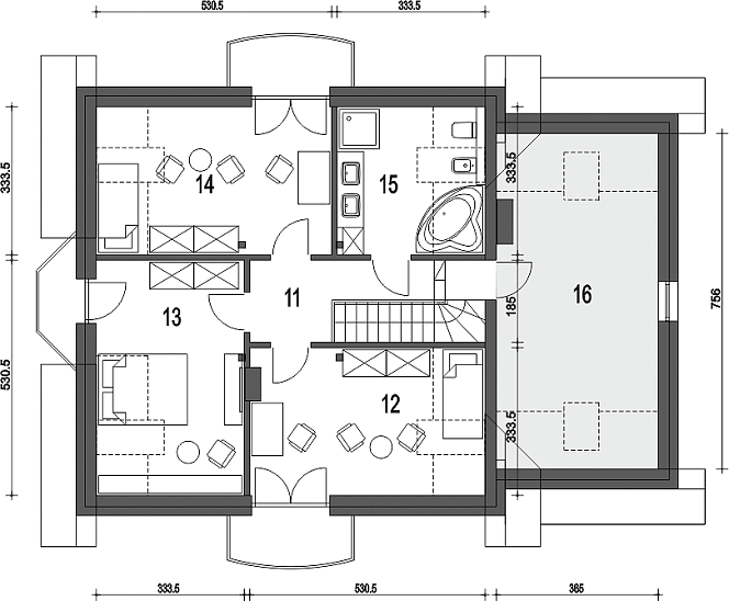
Планировка
Фасады
О проекте
Этот проект площадью 132 м² с жилыми 111 м² сочетает в себе практичность и стиль. Газобетонные стены дарят тепло и тишину, а продуманная планировка делает пространство удобным. Светлые комнаты наполнены уютом, создавая атмосферу домашнего комфорта. Здесь каждый метр продуман для гармоничной жизни.Характеристики
- Общая площадь: 131.9 м2
- Жилая площадь: 111 м2
- Количество этажей: 2
- Гараж: нет
- Площадь кровли: 135 м2
- Отделка: Без отделки
- Размер: 9x9
- Фундамент: Дома с плитным фундаментом
Материалы и перечень работ
- Монолитная теплоизолированная плита.
- Тепловая изоляция зоны дренирования вокруг дома.
- Газобетонный блок Bonolit D600 300 мм
- Сборно-монолитное межэтажное перекрытие из многопустотных предварительно напряженных плит ПНО 160 мм с монолитными армированными участками.
- Конструкции чердачного перекрытия, стропильные конструкции, обрешетка крыши выполнены из сухого антисептированного материала. Кровля дома изолируется от осадков подкровельной гидроизоляцией от компании JUTA.
- Кровля в соответствии с проектом. Покрытие цементно-песчаной черепицей BRAAS с доборными элементами.
- В стоимость не входят
- Ввод воды в дом. Вывод фекальной и технической канализации на 2,5 м за габариты здания.
- Заземляющий контур электроустановки дома. Гильза для подземного ввода электрического кабеля.
- В стоимость не входит
- Монолитная теплоизолированная плита.
- Тепловая изоляция зоны дренирования вокруг дома.
- Газобетонный блок Bonolit D600 300 мм
- Сборно-монолитное межэтажное перекрытие из многопустотных предварительно напряженных плит ПНО 160 мм с монолитными армированными участками.
- Конструкции чердачного перекрытия, стропильные конструкции, обрешетка крыши выполнены из сухого антисептированного материала. Кровля дома изолируется от осадков подкровельной гидроизоляцией от компании JUTA.
- Кровля в соответствии с проектом. Покрытие цементно-песчаной черепицей BRAAS с доборными элементами.
- В стоимость не входят
- Ввод воды в дом. Вывод фекальной и технической канализации на 2,5 м за габариты здания.
- Заземляющий контур электроустановки дома. Гильза для подземного ввода электрического кабеля.
- В стоимость не входит
Что еще входит в стоимость:
Отправьте свои контакты и мы расчитаем вам смету
Скорее всего вам подойдут следующие проекты домов:
Проект двухэтажного дома Дом id-119594
Семья с двумя детьми
Дом подходит для:
Дом подходит для:
Проект двухэтажного дома Дом id-114662
Семья с двумя детьми
Дом подходит для:
Дом подходит для:
Проект двухэтажного дома Дом id-125898
Семья с двумя детьми
Дом подходит для:
Дом подходит для:






















