Проект двухэтажного дома Виммерби
Площадь
140 м 2
Размер дома:
Этажей:
2
Спален:
4
Санузел:
0
Гараж:
Нет
Баня:
Нет
Терраса:
Нет
Панорамные окна:
Нет
Мастер-спальня:
Нет
О проекте
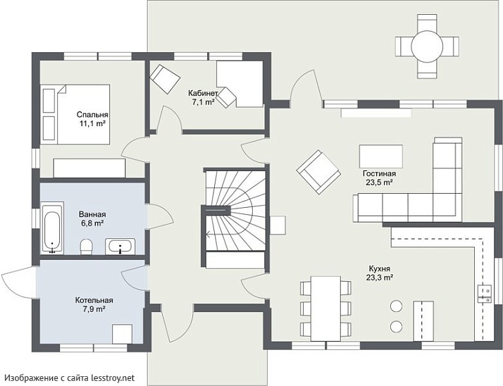
Просторный двухэтажный каркасный дом площадью 140 м² с металлочерепичной кровлей выполнен в финском стиле. Четыре спальни и светлые интерьеры делают его идеальным для семьи. Это сочетание скандинавского уюта и современного комфорта.Характеристики
- Общая площадь: 140 м2
- Количество этажей: 2
- Стиль, разновидность: Финские дома
- Форма: Прямоугольные дома
- Тип кровли: Дома с двускатной крышей
- Отделка: Без отделки
Отправьте свои контакты и мы расчитаем вам смету
Скорее всего вам подойдут следующие проекты домов:
Дом подходит для:
Дом подходит для:
Дом подходит для:













