Проект двухэтажного дома Винс
Дом подходит для:
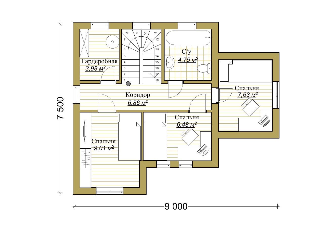
Площадь
126 м 2
Размер дома:
9х7,5
Этажей:
2
Спален:
3
Санузел:
2
Гараж:
Нет
Баня:
Нет
Терраса:
Да
Панорамные окна:
Нет
Мастер-спальня:
Нет
Планировка
Фасады
О проекте
Удобный дом площадью 126 м² с жилыми 100 м² идеален для семьи с двумя детьми. Каркасные стены создают теплую и дышащую среду, а металлочерепица добавляет долговечности. Внутри — продуманные и светлые помещения, наполненные гармонией. Здесь все продумано для комфортной и счастливой жизни.Характеристики
- Общая площадь: 126 м2
- Жилая площадь: 100 м2
- Количество этажей: 2
- Гараж: нет
- Площадь кровли: 131 м2
- Форма: Квадратные дома
- Тип кровли: Дома с многощипцовой крышей
- Пристрой: Дома с террасой
- Отделка: С инженерными коммуникациями
- Фундамент: Дома со свайным фундаментом
Материалы и перечень работ
- Свайно-винтовой фундамент
- Сваи закручиваются с использованием спецтехники
- Полость сваи заполняются бетонной смесью М300
- Двойная гидроизоляция фундамента – гидроизол
- Обвязочный брус 150х150мм
- Усиленные балки 50х200мм 1сорта с шагом не более 575 мм
- Черновой пол (верхний) – строганая доска 20х100мм 1 сорта с шагом 300мм, в прихожей котельной и с/у – сплошной настил (под плитку).
- Пароизоляционный барьер JUTAFOL H 110 с двух сторон
- Силовой ячеистый каркас с усиливающими ригелями и укосинами – 150 мм
- Вентилируемый зазор – рейка 20х50мм для прокладки коммуникаций/ внутренняя отделка
- Вентилируемый зазор – рейка 20х50мм для прокладки коммуникаций/ внутренняя отделка
- Усиленная стропильная система из доски 50х200мм 1сорта с шагом не более 580 мм
- Кровельное покрытие – металлочерепица, c полимерным покрытием, толщина металла 0,45-0,5мм, цвет на выбор из каталога, а так же коньки, ветровые планки, ендовы, капельники.
- Усиленная обрешетка 20х100мм с шагом 350мм
- ПВХ Rehau blitz - П/О механизм, 3-х камерный профиль, 2-х камерный стеклопакет 32мм с энергосберегающим стеклом подоконниками и отливами, установка по ГОСТ.
- Утепленная дверь с порошковым покрытием, 4-й класс взломостойкости
- Ввод закладных утепленных труб D110мм на глубину промерзания для подключения к септику (ЦК) и скважине/колодцу (ЦВ)
- Установка вентиляционных проходов (грибков) с выводом шахт через чердачное перекрытие в кол-ве 3 шт. (1- кухня, 1- С/у, 1 – фановый для канализации)
- Вентилируемый фасад – доска 20х100мм с обшивкой стен OSB-3-12мм/ внешняя отделка
- Свайно-винтовой фундамент
- Сваи закручиваются с использованием спецтехники
- Полость сваи заполняются бетонной смесью М300
- Двойная гидроизоляция фундамента – гидроизол
- Обвязочный брус 150х150мм
- Усиленные балки 50х200мм 1сорта с шагом не более 575 мм
- Черновой пол (верхний) – строганая доска 20х100мм 1 сорта с шагом 300мм, в прихожей котельной и с/у – сплошной настил (под плитку).
- Пароизоляционный барьер JUTAFOL H 110 с двух сторон
- Силовой ячеистый каркас с усиливающими ригелями и укосинами – 150 мм
- Вентилируемый зазор – рейка 20х50мм для прокладки коммуникаций/ внутренняя отделка
- Вентилируемый зазор – рейка 20х50мм для прокладки коммуникаций/ внутренняя отделка
- Усиленная стропильная система из доски 50х200мм 1сорта с шагом не более 580 мм
- Кровельное покрытие – металлочерепица, c полимерным покрытием, толщина металла 0,45-0,5мм, цвет на выбор из каталога, а так же коньки, ветровые планки, ендовы, капельники.
- Усиленная обрешетка 20х100мм с шагом 350мм
- ПВХ Rehau blitz - П/О механизм, 3-х камерный профиль, 2-х камерный стеклопакет 32мм с энергосберегающим стеклом подоконниками и отливами, установка по ГОСТ.
- Утепленная дверь с порошковым покрытием, 4-й класс взломостойкости
- Ввод закладных утепленных труб D110мм на глубину промерзания для подключения к септику (ЦК) и скважине/колодцу (ЦВ)
- Установка вентиляционных проходов (грибков) с выводом шахт через чердачное перекрытие в кол-ве 3 шт. (1- кухня, 1- С/у, 1 – фановый для канализации)
- Вентилируемый фасад – доска 20х100мм с обшивкой стен OSB-3-12мм/ внешняя отделка
Что еще входит в стоимость:
Отправьте свои контакты и мы расчитаем вам смету
Скорее всего вам подойдут следующие проекты домов:
Дом подходит для:
Дом подходит для:
Дом подходит для:










