Проект двухэтажного дома Йонкерс
Дом подходит для:
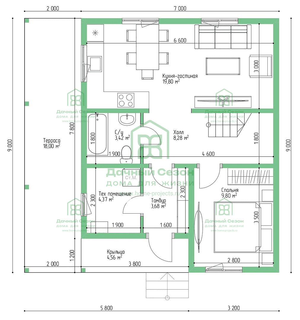
Площадь
117 м 2
Размер дома:
7x9
Этажей:
2
Спален:
5
Санузел:
2
Гараж:
Нет
Баня:
Нет
Терраса:
Нет
Панорамные окна:
Нет
Мастер-спальня:
Нет
Планировка
Фасады
О проекте
Просторный дом площадью 117 м² с жилой зоной 93 м² идеально подходит для большой семьи. Газобетонные стены обеспечивают надежность и тишину, а светлые интерьеры наполнены теплом. Продуманная планировка делает пространство функциональным и удобным. Здесь царит гармония между современным дизайном и домашним уютом.Характеристики
- Общая площадь: 117 м2
- Жилая площадь: 93 м2
- Количество этажей: 2
- Гараж: нет
- Площадь кровли: 121 м2
- Отделка: Без отделки
- Фундамент: Дома со свайно-ростверковым фундаментом
Материалы и перечень работ
- Монолитный ленточный свайно-ростверковый фундамент: монтаж деревянной опалубки для заливки бетонной смеси; вязка арматурного каркаса диаметром 12мм с загибом по углам с закреплением проектного положения в бетоне; бетон заводского изготовления марки М-300
- Наружные несущие стены из газобетона 300 мм (375 мм)
- Внутренние несущие стены из газобетона 300 мм (375 мм)
- Межкомнатные перегородки из газобетона 100 мм
- Оформленные перемычками оконные проёмы
- Кладка блоков осуществляется на кладочный клей, армирование блоков через каждые три ряда сеткой, монтаж оконных и дверных перемычек из металлического уголка 100х100х5мм
- Металлочерепица, оцинкованная, толщина стали 0.5 мм (полиэстер)
- Стропильная система 45х195 мм
- 2-камерный стеклопакет Rehau, фурнитура Roto, антимоскитные сетки
- Входная металлическая (1 шт.): дверь с антивандальным покрытием с молотковым напылением снаружи, с декоративной МДФ-панелью изнутри, утеплённая, с глазком и цилиндровым замком. Производство Россия. (снаружи: Антик Медный/внутри: МДФ Беленый дуб; 2 замка,
- Закладные утепленные гильзы под канализацию
- Закладные утепленные гильзы под воду
- В стоимость не входит
- Монолитный ленточный свайно-ростверковый фундамент: монтаж деревянной опалубки для заливки бетонной смеси; вязка арматурного каркаса диаметром 12мм с загибом по углам с закреплением проектного положения в бетоне; бетон заводского изготовления марки М-300
- Наружные несущие стены из газобетона 300 мм (375 мм)
- Внутренние несущие стены из газобетона 300 мм (375 мм)
- Межкомнатные перегородки из газобетона 100 мм
- Оформленные перемычками оконные проёмы
- Кладка блоков осуществляется на кладочный клей, армирование блоков через каждые три ряда сеткой, монтаж оконных и дверных перемычек из металлического уголка 100х100х5мм
- Металлочерепица, оцинкованная, толщина стали 0.5 мм (полиэстер)
- Стропильная система 45х195 мм
- 2-камерный стеклопакет Rehau, фурнитура Roto, антимоскитные сетки
- Входная металлическая (1 шт.): дверь с антивандальным покрытием с молотковым напылением снаружи, с декоративной МДФ-панелью изнутри, утеплённая, с глазком и цилиндровым замком. Производство Россия. (снаружи: Антик Медный/внутри: МДФ Беленый дуб; 2 замка,
- Закладные утепленные гильзы под канализацию
- Закладные утепленные гильзы под воду
- В стоимость не входит
Что еще входит в стоимость:
Отправьте свои контакты и мы расчитаем вам смету
Скорее всего вам подойдут следующие проекты домов:
Проект двухэтажного дома Дом id-114349
Для большой семьи
Дом подходит для:
Дом подходит для:
Проект двухэтажного дома Дом id-114314
Семья с двумя детьми
Дом подходит для:
Дом подходит для:
Проект двухэтажного дома Дом id-54431
Для большой семьи
Дом подходит для:
Дом подходит для:





















