Проект двухэтажного дома Зара 165
Дом подходит для:
Площадь
165 м 2
Размер дома:
11,9 x 10,3
Этажей:
2
Спален:
5
Санузел:
3
Гараж:
Нет
Баня:
Нет
Терраса:
Нет
Панорамные окна:
Нет
Мастер-спальня:
Нет
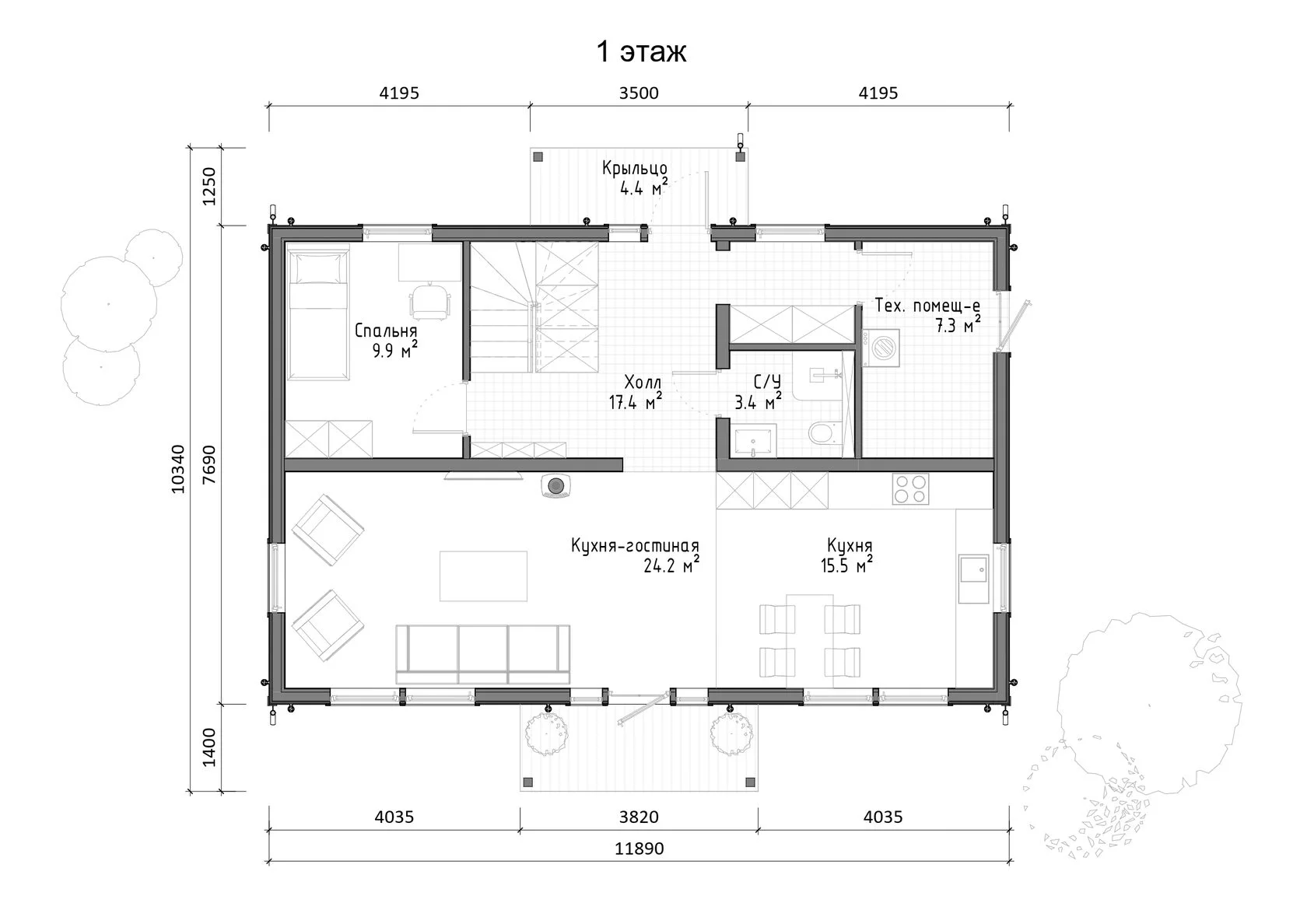
Планировка
Фасады
О проекте
Каркасный дом Зара 165 площадью 165 м² с жилыми 128 м² — воплощение легкости и уюта. Каркасные стены создают теплую атмосферу, а металлочерепица на крыше обеспечивает защиту. Пять спален и три санузла делают его идеальным для семьи. Утеплённая шведская плита завершает образ этого современного жилья.Характеристики
- Общая площадь: 165 м2
- Жилая площадь: 128 м2
- Количество этажей: 2
- Гараж: нет
- Площадь кровли: 169 м2
- Отделка: Без отделки
- Фундамент: Дома с плитным фундаментом
Материалы и перечень работ
- Песчаное основание 300мм
- Закладные под коммуникации
- Тёплые водяные полы
- Трубы ХВС/ГВС и канализации
- Дренажная и ливневая канализации
- Стеновые панели с готовым фасадом и окнами
- Отдельные конструктивные элементы
- Кровельные панели LVL- брус
- Межэтажные панели LVL- брус
- Укладка кровельного покрытия
- Временные строительная лестница и дверь
- Не предусмотрена
- Комплект заводских панелей
- Крепёжные элементы
- Песчаное основание 300мм
- Закладные под коммуникации
- Тёплые водяные полы
- Трубы ХВС/ГВС и канализации
- Дренажная и ливневая канализации
- Стеновые панели с готовым фасадом и окнами
- Отдельные конструктивные элементы
- Кровельные панели LVL- брус
- Межэтажные панели LVL- брус
- Укладка кровельного покрытия
- Временные строительная лестница и дверь
- Не предусмотрена
- Комплект заводских панелей
- Крепёжные элементы
Что еще входит в стоимость:
Отправьте свои контакты и мы расчитаем вам смету
Скорее всего вам подойдут следующие проекты домов:
Дом подходит для:
Дом подходит для:
Дом подходит для:










