Проект двухэтажного дома Завидово
Дом подходит для:
Площадь
164 м 2
Размер дома:
9x12
Этажей:
2
Спален:
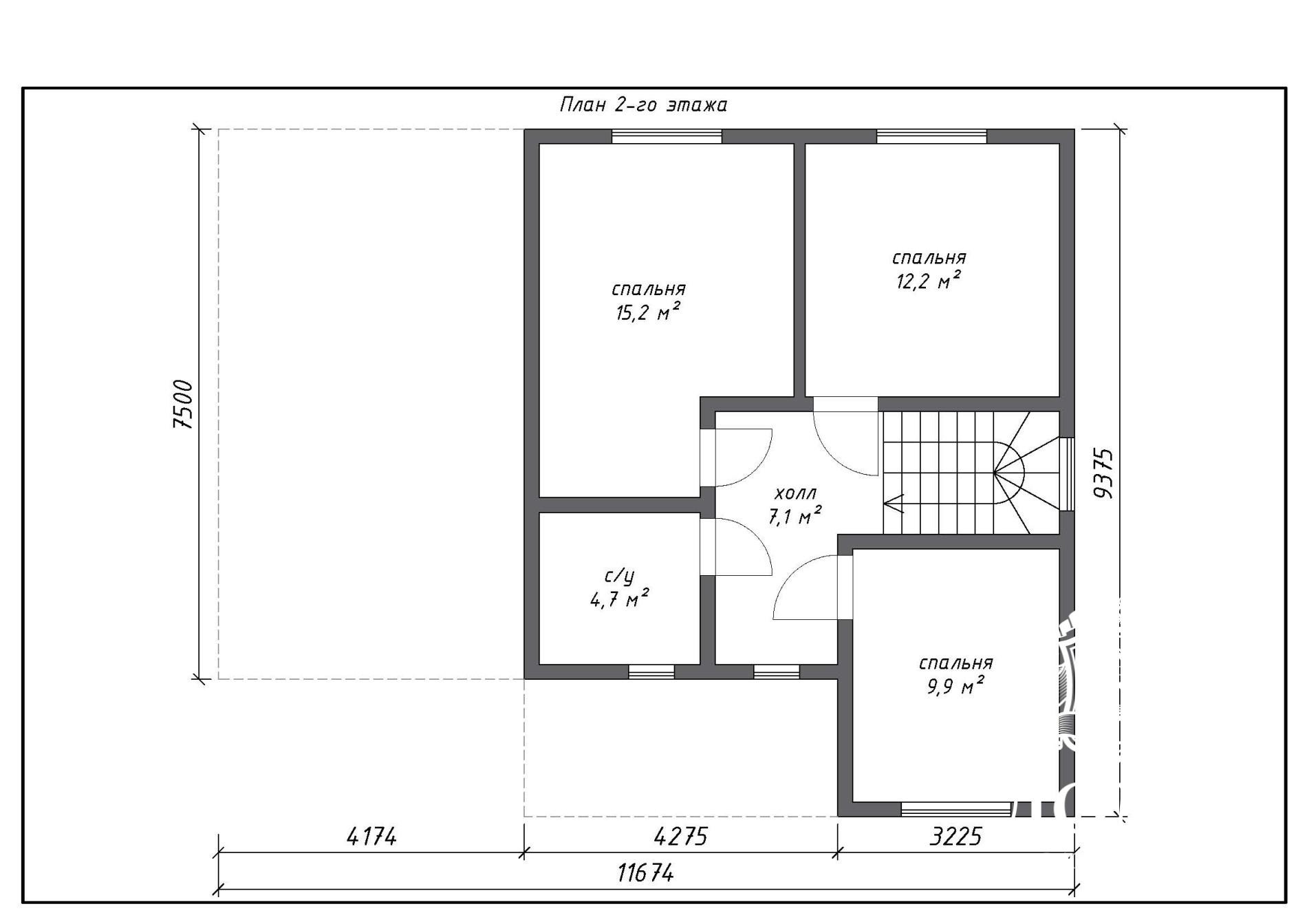
3
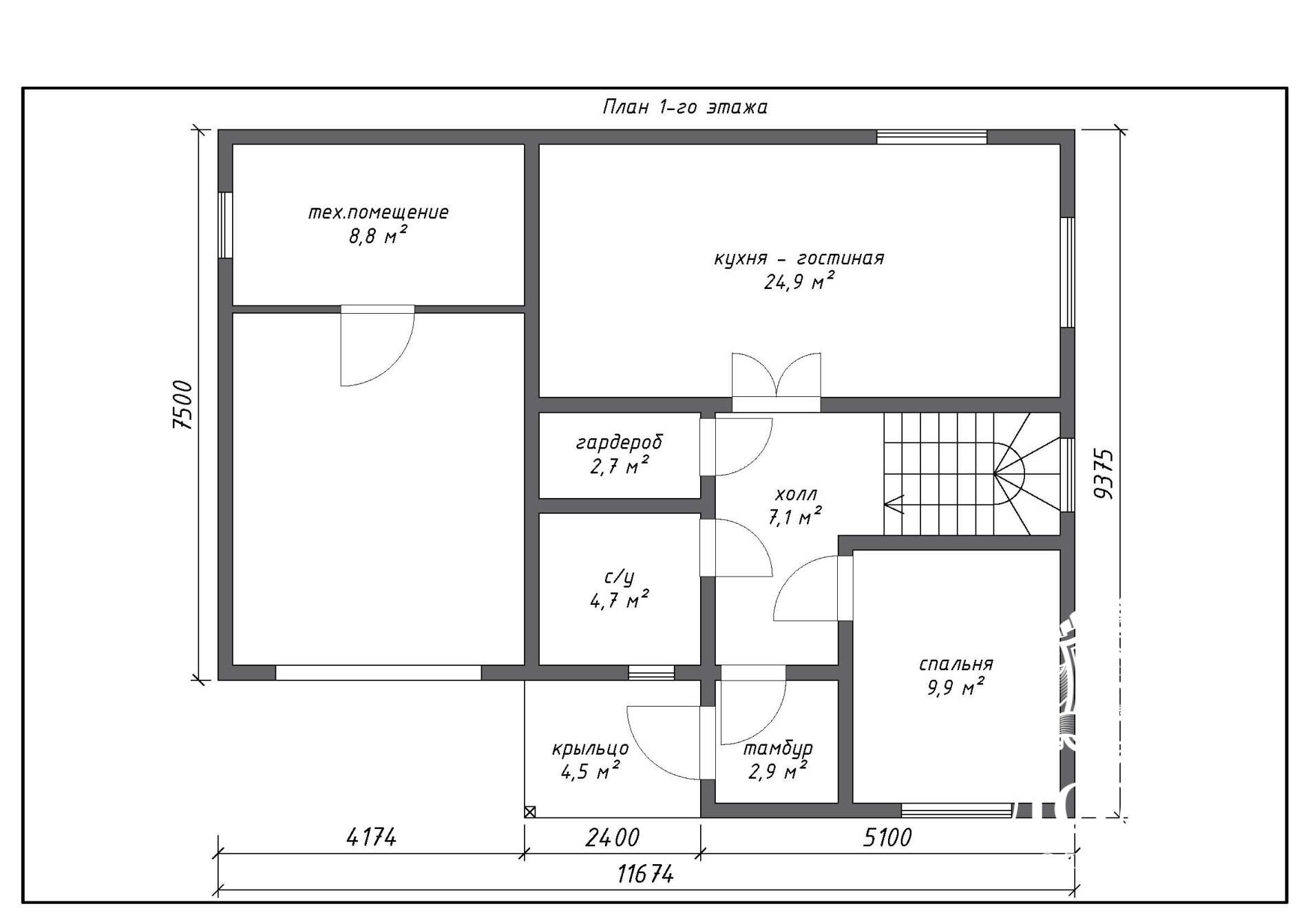
Санузел:
1
Гараж:
Да
Баня:
Нет
Терраса:
Нет
Панорамные окна:
Нет
Мастер-спальня:
Нет
Планировка
Фасады
О проекте
Просторный дом площадью 164 м² с жилой площадью 138 м² идеален для семьи с двумя детьми. Каркасные стены обеспечивают тепло и энергоэффективность, а профнастил на кровле добавляет практичности. Интерьеры светлые и уютные, с гармоничной планировкой. Это дом, где современность сочетается с домашним теплом.Характеристики
- Общая площадь: 164 м2
- Жилая площадь: 138 м2
- Количество этажей: 2
- Гараж: 20
- Площадь кровли: 169 м2
- Форма: Квадратные дома
- Тип кровли: Дома с односкатной крышей
- Пристрой: Дома с гаражом на 1 машину
- Отделка: Без отделки
- Фундамент: Дома со свайным фундаментом
Материалы и перечень работ
- Фундамент: Винтовые сваи длиной 2500 мм. под ключ
- Полы: утепление 150 мм, доска пола 35 мм. Обработка огнебиозащитой нижнего конструктива
- Стены: утепление 150 мм, отделка внутри и снаружи вагонкой 12,5 мм
- Перегородки: Перегородки - каркас 100 мм, отделка вагонкой 12,5 мм, утепление - 100 мм
- Межэтажное перекрытие: звукоизоляция 50 мм, отделка вагонкой 12,5 мм
- Чердачное перекрытие: утепление 150 мм, отделка вагонкой 12,5 мм
- Кровля: Оцинкованный профнастил
- В стоимость не входит
- В стоимость не входит
- В стоимость не входит
- Фундамент: Винтовые сваи длиной 2500 мм. под ключ
- Полы: утепление 150 мм, доска пола 35 мм. Обработка огнебиозащитой нижнего конструктива
- Стены: утепление 150 мм, отделка внутри и снаружи вагонкой 12,5 мм
- Перегородки: Перегородки - каркас 100 мм, отделка вагонкой 12,5 мм, утепление - 100 мм
- Межэтажное перекрытие: звукоизоляция 50 мм, отделка вагонкой 12,5 мм
- Чердачное перекрытие: утепление 150 мм, отделка вагонкой 12,5 мм
- Кровля: Оцинкованный профнастил
- В стоимость не входит
- В стоимость не входит
- В стоимость не входит
Что еще входит в стоимость:
Отправьте свои контакты и мы расчитаем вам смету
Скорее всего вам подойдут следующие проекты домов:
Дом подходит для:
Дом подходит для:
Дом подходит для:











