Заказать дом из оцилиндрованного бревна
Дом подходит для:
Проект одноэтажного дома Проект одноэтажного дома из оцилиндрованного бревна ШАЛЕ АНСЕЛЬ (9,7м х 14м)
Семья с двумя детьми
Дом подходит для:
Дом подходит для:
Дом подходит для:
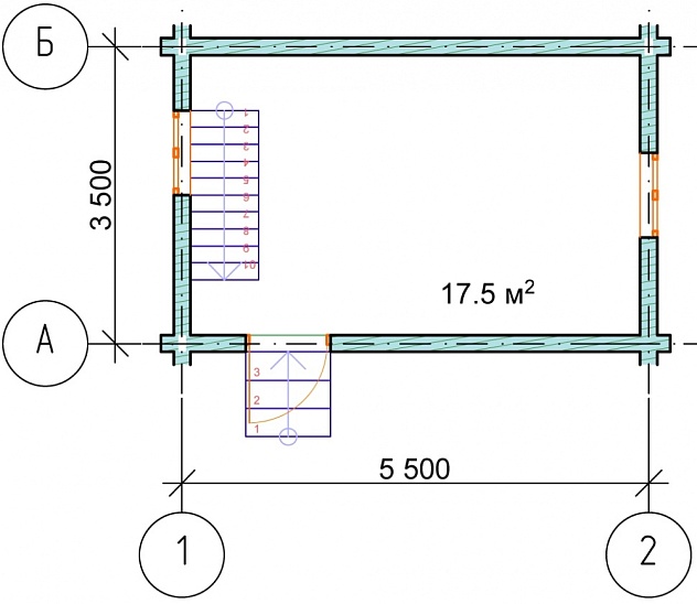
Проект двухэтажного дома из бревна 092
Семья с одним ребенком
Дом подходит для:
Дом подходит для:
Дом подходит для:
Дом подходит для:
Проект одноэтажного дома из бревна 065
Семья с одним ребенком
Дом подходит для:
Дом подходит для:
Дом подходит для:
Проект одноэтажного дома Дом одноэтажный из оцилиндрованного бревна ШАЛЕ- 115м2(11м х 10,5м)
Семья с одним ребенком
Дом подходит для:
Дом подходит для:
Проект одноэтажного дома Дом одноэтажный из бревна ДЕРЕВЕНСКИЙ - 120м2 (10мх12м)
Семья с одним ребенком
Дом подходит для:
Дом подходит для:
Дом подходит для:
Дом подходит для:
Дом подходит для:
Дом подходит для:
Дом подходит для:
Дом подходит для:
Дом из оцилиндрованного бревна – это идеальное сочетание современных технологий и вековых традиций деревянного домостроения. Такой частный дом поражает безупречной геометрией форм и естественной красотой натуральной древесины. Деревянный дом из оцилиндрованного бревна отличается особой эстетикой – ровные, тщательно обработанные бревна создают гармоничный облик, а природный материал обеспечивает здоровый микроклимат в любое время года. Сруб из оцилиндрованного бревна – это не просто жилье, а настоящее произведение искусства, где каждая деталь продумана до мелочей.
Выбирая дом из оцилиндрованного бревна, вы получаете идеальное сочетание комфорта и экологичности. Частный дом из этого материала обладает отличной теплоизоляцией, устойчивостью к внешним воздействиям и неповторимым уютом. Технология производства позволяет создавать дом из бревна с минимальными зазорами между венцами, что гарантирует долговечность и надежность конструкции.
Мечтаете о собственном доме из оцилиндрованного бревна, который станет вашим семейным гнездом на десятилетия? На Стройман.ру представлены сотни проектов домов из бревна на любой вкус – от уютных дачных вариантов до просторных коттеджей для круглогодичного проживания!
Выбирая дом из оцилиндрованного бревна, вы получаете идеальное сочетание комфорта и экологичности. Частный дом из этого материала обладает отличной теплоизоляцией, устойчивостью к внешним воздействиям и неповторимым уютом. Технология производства позволяет создавать дом из бревна с минимальными зазорами между венцами, что гарантирует долговечность и надежность конструкции.
Мечтаете о собственном доме из оцилиндрованного бревна, который станет вашим семейным гнездом на десятилетия? На Стройман.ру представлены сотни проектов домов из бревна на любой вкус – от уютных дачных вариантов до просторных коттеджей для круглогодичного проживания!



















































































