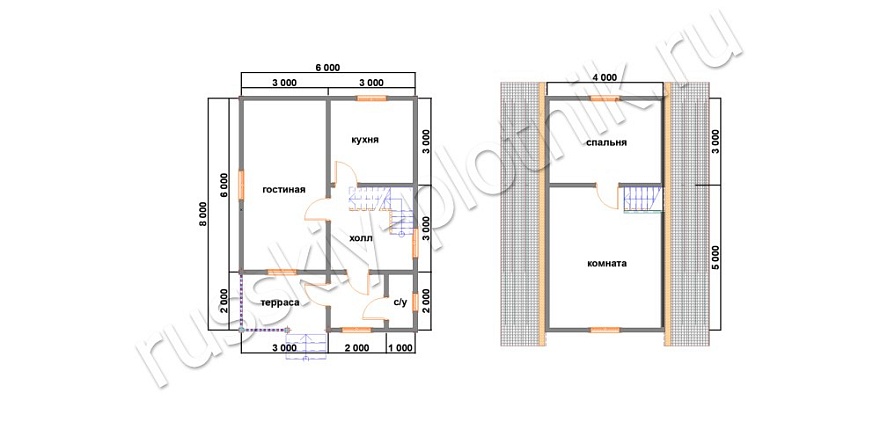
Дома 70 м2
Проект одноэтажного дома РК-161
Семья с одним ребенком
Дом подходит для:
Дом подходит для:
Проект одноэтажного дома Проект дома из бруса 8х9 - СОКРОВИЩНИЦА
Семья с одним ребенком
Дом подходит для:
Дом подходит для:
Проект одноэтажного дома Дом из профилированного бруса по проекту Д-21
Семья с одним ребенком
Дом подходит для:
Дом подходит для:
Дом подходит для:
Дом подходит для:
Проект одноэтажного дома Дом из бруса 9 x 12 м | проект Д-35
Семья с одним ребенком
Дом подходит для:
Дом подходит для:
Дом подходит для:
Проект двухэтажного дома ДБ-20 Дом из Профилированного бруса под Металлочерепицу Фундамент ЖБ сваи
Семья с одним ребенком
Дом подходит для:
Дом подходит для:
Проект двухэтажного дома Д-7
Семья с одним ребенком
Дом подходит для:
Дом подходит для:
Проект одноэтажного дома БД-227
Семья с одним ребенком
Дом подходит для:
Дом подходит для:
Проект одноэтажного дома Сруб дома из профилированного бруса размером 9х9 брус 150х200 перегородки 150х150 работа 2016 года
Семья с одним ребенком
Дом подходит для:
Дом подходит для:
Проект одноэтажного дома Дом из бруса по проекту «Нектарин»
Семья с одним ребенком
Дом подходит для:
Дом подходит для:




















































































