Проект двухэтажного дома Аббакумово OLD
Дом подходит для:
Площадь
158 м 2
Размер дома:
11х9
Этажей:
2
Спален:
3
Санузел:
2
Гараж:
Да
Баня:
Нет
Терраса:
Нет
Панорамные окна:
Нет
Мастер-спальня:
Нет
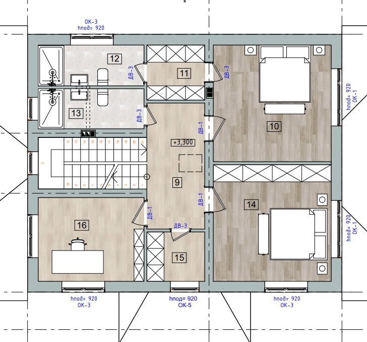
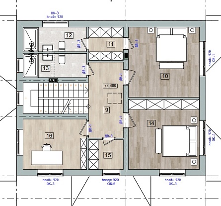
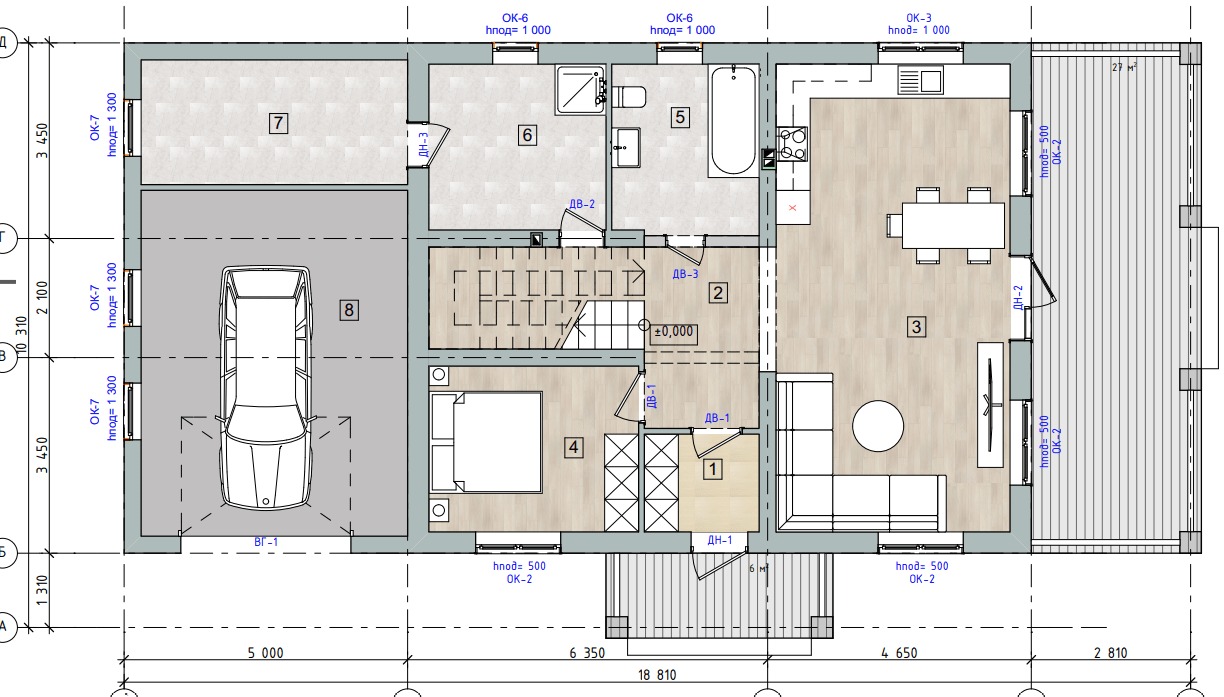
Планировка
Фасады
О проекте
Аббакумово OLD — уютный кирпичный дом площадью 158 м² с жилыми 111 м², где простор и уют идут рука об руку. Светлые комнаты с продуманной планировкой создают ощущение простора, а натуральные материалы дарят тепло и спокойствие. Металлочерепица дополняет лаконичный фасад, а удобные решения делают жизнь здесь комфортной. Идеальный вариант для семьи с двумя детьми.Характеристики
- Общая площадь: 158 м2
- Жилая площадь: 111 м2
- Количество этажей: 2
- Гараж: 22
- Площадь кровли: 171 м2
- Форма: Квадратные дома
- Тип кровли: Дома с четырехскатной крышей (вальмовой)
- Пристрой: Дома с гаражом на 1 машину
- Отделка: White box
- Отделка фасада: Дома с кирпичной отделкой
- Фундамент: Дома с плитным фундаментом
- Класс дома: Дома класса Стандарт
Материалы и перечень работ
- Утепленная монолитная плита с усиленными ребрами жесткостями под несущие стены;
- Разработка котлована (снятие плодородного слоя);
- Разделяющий слой из геотекстиля (Такая прослойка станет надежным барьером и предотвратит смешивание песка и его заиливание);
- Арматурный каркас (диаметр 6, 12 и 14 мм);
- Бетон В25 (М350) сертифицированный;
- Изготовление ж/б армопояса соответствует требования СНиП, что позволяет выдерживать большие нагрузки и распределять их равномерно;
- Несущие стены толщиной 300 мм, благодаря высоким теплотехническим свойствам с учетом внешней отделки (кирпичная кладка/утепленные панели под кирпич) проходят норму теплосопротивляемости и не нуждаются в дополнительном утеплении.
- Перекрытия из железобетонных плит заводского изготовления. Расчетная прочность которых в 5 раз выше, чем деревянное перекрытия из бруса.
- Монтаж гидроизоляции на поверхность под несущие стены;
- Покрытие кровли - металлочерепица Grandline с полимерным покрытием Satin
- Стропильная система Брус естественной влажности, по ГОСТ. Размер сечения 50 х 200 мм.
- Гидро-ветрозащитная мембрана
- Пароизоляционная пленка
- В стоимость не входит
- В стоимость не входит
- В стоимость не входит
- Утепленная монолитная плита с усиленными ребрами жесткостями под несущие стены;
- Разработка котлована (снятие плодородного слоя);
- Разделяющий слой из геотекстиля (Такая прослойка станет надежным барьером и предотвратит смешивание песка и его заиливание);
- Арматурный каркас (диаметр 6, 12 и 14 мм);
- Бетон В25 (М350) сертифицированный;
- Изготовление ж/б армопояса соответствует требования СНиП, что позволяет выдерживать большие нагрузки и распределять их равномерно;
- Несущие стены толщиной 300 мм, благодаря высоким теплотехническим свойствам с учетом внешней отделки (кирпичная кладка/утепленные панели под кирпич) проходят норму теплосопротивляемости и не нуждаются в дополнительном утеплении.
- Перекрытия из железобетонных плит заводского изготовления. Расчетная прочность которых в 5 раз выше, чем деревянное перекрытия из бруса.
- Монтаж гидроизоляции на поверхность под несущие стены;
- Покрытие кровли - металлочерепица Grandline с полимерным покрытием Satin
- Стропильная система Брус естественной влажности, по ГОСТ. Размер сечения 50 х 200 мм.
- Гидро-ветрозащитная мембрана
- Пароизоляционная пленка
- В стоимость не входит
- В стоимость не входит
- В стоимость не входит
Что еще входит в стоимость:
Отправьте свои контакты и мы расчитаем вам смету
Скорее всего вам подойдут следующие проекты домов:
Проект двухэтажного дома Исаково
Семья с одним ребенком
Дом подходит для:
Дом подходит для:
Проект двухэтажного дома Ельдигино
Для большой семьи
Дом подходит для:
Дом подходит для:
Проект двухэтажного дома Верея
Семья с двумя детьми
Дом подходит для:
Дом подходит для:









