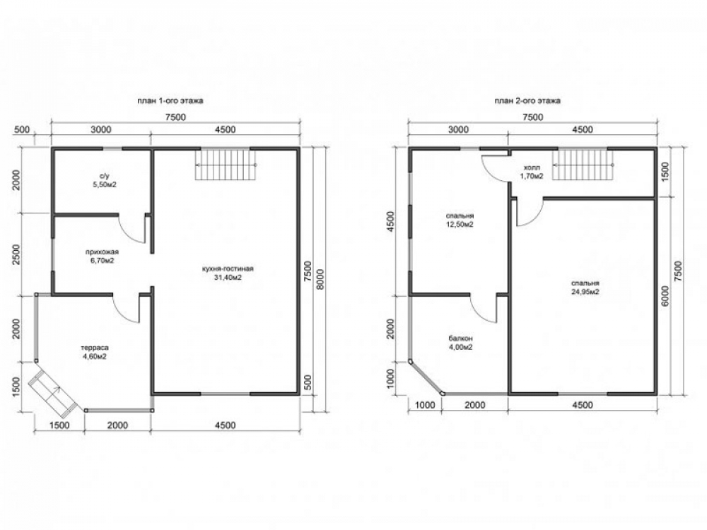
Проект двухэтажного дома Д-83 дом из бруса 7,5х8,0м с террасой и балконом
Площадь
89 м 2
Размер дома:
Этажей:
2
Спален:
2
Санузел:
0
Гараж:
Нет
Баня:
Нет
Терраса:
Нет
Панорамные окна:
Нет
Мастер-спальня:
Нет
О проекте
Четкие геометрические линии и теплая палитра фасадов придают дому выразительный характер. Стильный интерьер в рамках 99 м². Двухэтажная эргономичная планировка обеспечивает комфортную навигацию внутри дома. Архитектура выполнена в стиле дома в классическом стиле. Проект включает 4 спальни — удобно для семьи.Характеристики
- Общая площадь: 89 м2
- Количество этажей: 2
- Стиль, разновидность: Дома в ином стиле
- Форма: Прямоугольные дома
- Тип кровли: Дома с иной крышей
- Отделка: Без отделки
Отправьте свои контакты и мы расчитаем вам смету
Скорее всего вам подойдут следующие проекты домов:
Дом подходит для:












