Проект двухэтажного дома Дом 8х12 Иваныч
Площадь
170 м 2
Размер дома:
9x13
Этажей:
2
Спален:
3
Санузел:
0
Гараж:
Нет
Баня:
Нет
Терраса:
Нет
Панорамные окна:
Нет
Мастер-спальня:
Нет
О проекте
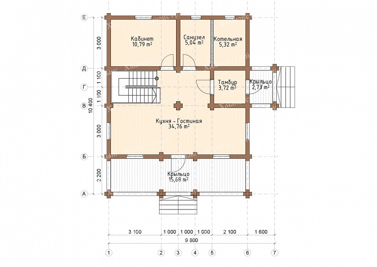
Пространство, где даже самый маленький уголок имеет значение. 170 м² — достаточная площадь для организации всех необходимых зон. Двухэтажная современная планировка обеспечивает комфортную навигацию внутри дома. Крыша из металлочерепица подчёркивает современный облик дома. Дом спроектирован в духе дома в стиле русский.Характеристики
- Общая площадь: 170 м2
- Количество этажей: 2
- Стиль, разновидность: Дома в стиле Русский
- Форма: Прямоугольные дома
- Тип кровли: Дома с двускатной крышей
- Отделка: Без отделки
- Размер: 9x13
Отправьте свои контакты и мы расчитаем вам смету
Скорее всего вам подойдут следующие проекты домов:
Дом подходит для:
Дом подходит для:
Дом подходит для:












