Проект двухэтажного дома Дом id-93744
Дом подходит для:
Площадь
170 м 2
Размер дома:
14x18
Этажей:
2
Спален:
3
Санузел:
2
Гараж:
Нет
Баня:
Нет
Терраса:
Нет
Панорамные окна:
Нет
Мастер-спальня:
Нет
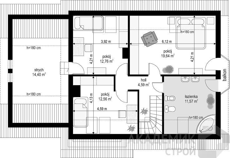
Планировка
Характеристики
- Общая площадь: 170 м2
- Жилая площадь: 109 м2
- Количество этажей: 2
- Гараж: На 1 машину
- Площадь кровли: 258 м2
- Размер: 14x18
- Фундамент: Дома с ленточным фундаментом
Отправьте свои контакты и мы расчитаем вам смету
Скорее всего вам подойдут следующие проекты домов:
Проект двухэтажного дома Дом id-110330
Для большой семьи
Дом подходит для:
Дом подходит для:
Проект двухэтажного дома Дом id-67396
Для большой семьи
Дом подходит для:
Дом подходит для:
Проект двухэтажного дома Дом id-124152
Семья с двумя детьми
Дом подходит для:
Дом подходит для:
























