Проект двухэтажного дома ИС-71 «Уют»
Дом подходит для:
Площадь
166 м 2
Размер дома:
9x9
Этажей:
2
Спален:
4
Санузел:
2
Гараж:
Нет
Баня:
Нет
Терраса:
Нет
Панорамные окна:
Нет
Мастер-спальня:
Нет
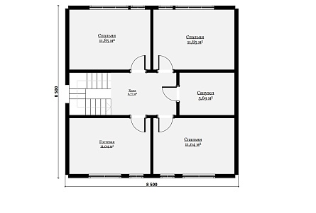
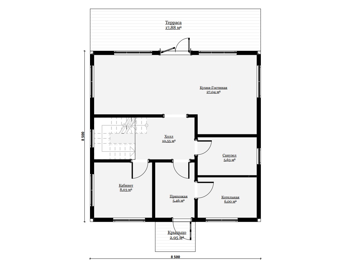
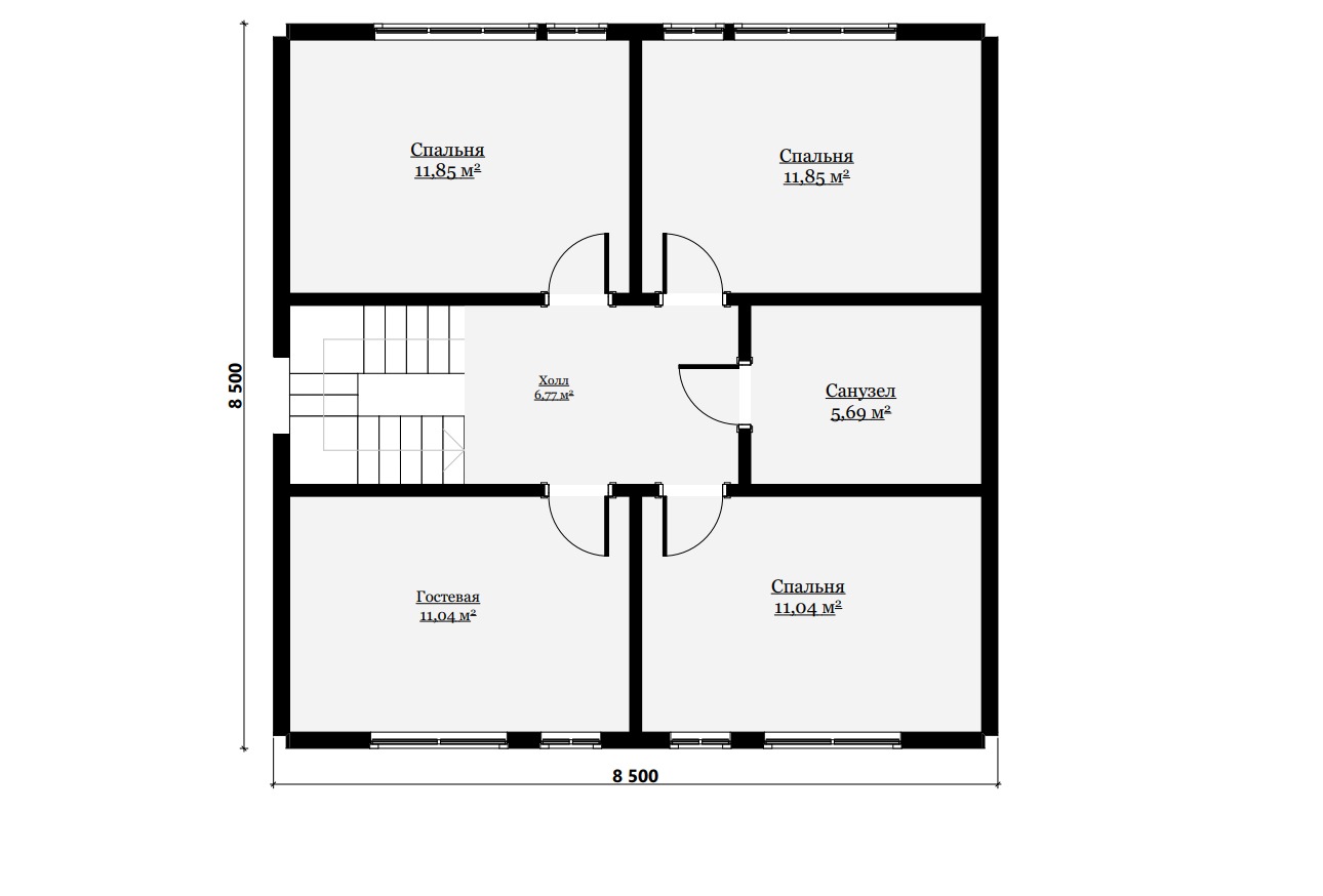
Планировка
Фасады
О проекте
Уютный дом площадью 166 м² с жилой зоной 133 м² предлагает комфорт и простор для большой семьи. Четыре спальни и два санузла создают уютное пространство, а каркасные стены дарят тепло и тишину. Продуманная планировка делает жизнь здесь удобной и гармоничной. Это дом, где каждая деталь продумана для вашего уюта.Характеристики
- Общая площадь: 166 м2
- Жилая площадь: 133 м2
- Количество этажей: 2
- Гараж: нет
- Площадь кровли: 171 м2
- Отделка: Без отделки
- Размер: 9x9
- Фундамент: Дома со свайным фундаментом
Материалы и перечень работ
- Фундамент: Винтовые сваи 108 мм с оголовком 150 х 150 х 2500, Оголовок 150 х 150, окрашен порошковой краской, Обвязка фундамента 150 х 150 брус/пакет досок елочным соединением, Устройство гидроизоляции по верху фундамента — два слоя рубероида, Крепление основания к фундаменту: саморез «глухарь» 8х60мм, Отливы над цокольным сайдингом металлические 50мм, в цвет сайдинга, Сетка от грызунов 6610мм
- Перекрытия: Доска сухая строганная с четырех сторон 45х195
- Основной каркас дома: доска завальцованная, Доска сухая строганная камерной сушки: 45 х 145, Каркас внутренних стен 45 х 145/ 45 х 95, Все отделочные материалы камерной сушки, Обработка антисептиком цокольного перекрытия первого этажа, «Изоспан» В, Гидроизоляция А, Гидроизоляция кровли: «Изоспан» АМ, Пароизоляция «Изоспан» монтируется внахлёст с проклейкой стыков скотчем DELTA
- Лаги: Доска 45х195мм – камерной сушки, на ребро с шагом 590мм, Черновой пол: доска камерной сушки, строганная 45х95мм, Поверх укладывается: Фанера 18мм
- Внутренняя отделка: Обшивка стен: прижимная обрешетка, Обшивка с/у: прижимная обрешетка, Обшивка котельной: прижимная обрешетка, Потолок: прижимная обрешетка, Полы: фанера 18 мм
- Стропильная система: Стропильные доски 45 х 145, Контробрешетка 45х45, Обрешетка доски 20 х 90, Связка стропил оцинкованной стальной шпилькой М12
- Кровля: Металлочерепица 0,45 мм толщина, Полный комплект со всеми доборными элементами, Свесы крыши: пластиковые софиты, Отливы: металлические
- Утепление: Теплоизоляция: URSA TERRA 34 PRO, Наружные стены: 150 мм, Внутренние несущие стены: 150 мм, Внутренние перегородки: 100 мм, Потолок: 150 мм, Цокольное перекрытие: 150 мм
- Окна и подоконники: Окна: ПВХ двухкамерные REHAU 60мм (без москитных сеток), Цвет: белые с 2-х сторон (в базе), Подоконники: пластиковые белые, Отливы, углы дома, наружные наличники окон: металлические
- Двери: Входная: снаружи металлическая/внутри МДФ-панель – левая/правая, утепленная в два слоя с Терморазрывом (производитель Termo Door)
- В стоимость не входит
- Наружная отделка: Бруски 45 х 45 /50 х 50, Обшивка стен: фасадная плитка Hauberk от Технониколь, osb 9 мм
- Фундамент: Винтовые сваи 108 мм с оголовком 150 х 150 х 2500, Оголовок 150 х 150, окрашен порошковой краской, Обвязка фундамента 150 х 150 брус/пакет досок елочным соединением, Устройство гидроизоляции по верху фундамента — два слоя рубероида, Крепление основания к фундаменту: саморез «глухарь» 8х60мм, Отливы над цокольным сайдингом металлические 50мм, в цвет сайдинга, Сетка от грызунов 6610мм
- Перекрытия: Доска сухая строганная с четырех сторон 45х195
- Основной каркас дома: доска завальцованная, Доска сухая строганная камерной сушки: 45 х 145, Каркас внутренних стен 45 х 145/ 45 х 95, Все отделочные материалы камерной сушки, Обработка антисептиком цокольного перекрытия первого этажа, «Изоспан» В, Гидроизоляция А, Гидроизоляция кровли: «Изоспан» АМ, Пароизоляция «Изоспан» монтируется внахлёст с проклейкой стыков скотчем DELTA
- Лаги: Доска 45х195мм – камерной сушки, на ребро с шагом 590мм, Черновой пол: доска камерной сушки, строганная 45х95мм, Поверх укладывается: Фанера 18мм
- Внутренняя отделка: Обшивка стен: прижимная обрешетка, Обшивка с/у: прижимная обрешетка, Обшивка котельной: прижимная обрешетка, Потолок: прижимная обрешетка, Полы: фанера 18 мм
- Стропильная система: Стропильные доски 45 х 145, Контробрешетка 45х45, Обрешетка доски 20 х 90, Связка стропил оцинкованной стальной шпилькой М12
- Кровля: Металлочерепица 0,45 мм толщина, Полный комплект со всеми доборными элементами, Свесы крыши: пластиковые софиты, Отливы: металлические
- Утепление: Теплоизоляция: URSA TERRA 34 PRO, Наружные стены: 150 мм, Внутренние несущие стены: 150 мм, Внутренние перегородки: 100 мм, Потолок: 150 мм, Цокольное перекрытие: 150 мм
- Окна и подоконники: Окна: ПВХ двухкамерные REHAU 60мм (без москитных сеток), Цвет: белые с 2-х сторон (в базе), Подоконники: пластиковые белые, Отливы, углы дома, наружные наличники окон: металлические
- Двери: Входная: снаружи металлическая/внутри МДФ-панель – левая/правая, утепленная в два слоя с Терморазрывом (производитель Termo Door)
- В стоимость не входит
- Наружная отделка: Бруски 45 х 45 /50 х 50, Обшивка стен: фасадная плитка Hauberk от Технониколь, osb 9 мм
Что еще входит в стоимость:
Отправьте свои контакты и мы расчитаем вам смету
Скорее всего вам подойдут следующие проекты домов:
Дом подходит для:
Дом подходит для:
Дом подходит для:













