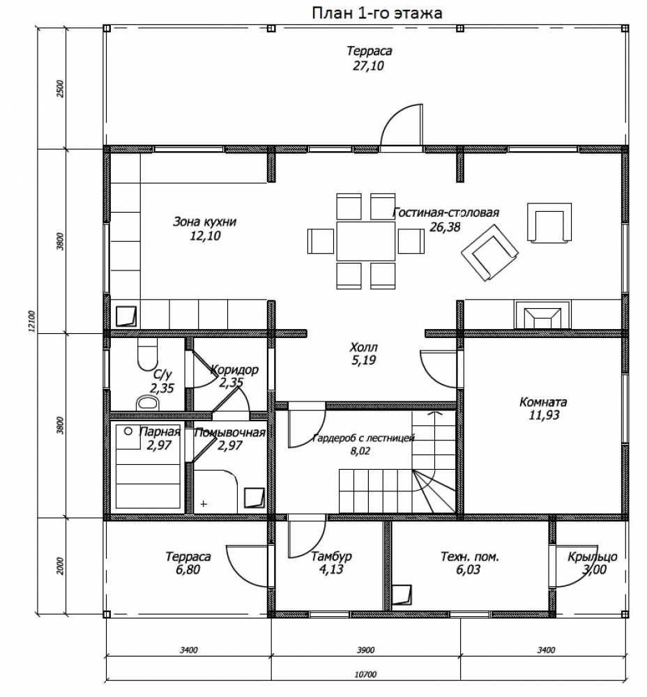
Проект двухэтажного дома Каркасный дом 10х12 (Проект К-21)
Площадь
205 м 2
Размер дома:
10x12
Этажей:
2
Спален:
4
Санузел:
0
Гараж:
Нет
Баня:
Нет
Терраса:
Нет
Панорамные окна:
Нет
Мастер-спальня:
Нет
О проекте
Дом спроектирован для ценителей спокойной и размеренной жизни.Жизнь комфортна, когда есть свои 336 м². Наличие 4 спальни удовлетворит запросы семьи с детьми. Материал кровли — черепица, что добавляет зданию индивидуальность. Двухэтажная удобная планировка организует пространство максимально эффективно.Характеристики
- Общая площадь: 205 м2
- Количество этажей: 2
- Стиль, разновидность: Дома в ином стиле
- Форма: Прямоугольные дома
- Тип кровли: Дома с многощипцовой крышей
- Отделка: Без отделки
- Размер: 10x12
Отправьте свои контакты и мы расчитаем вам смету
Скорее всего вам подойдут следующие проекты домов:
Дом подходит для:
Дом подходит для:
Дом подходит для:













