Проект двухэтажного дома Ковдор
Площадь
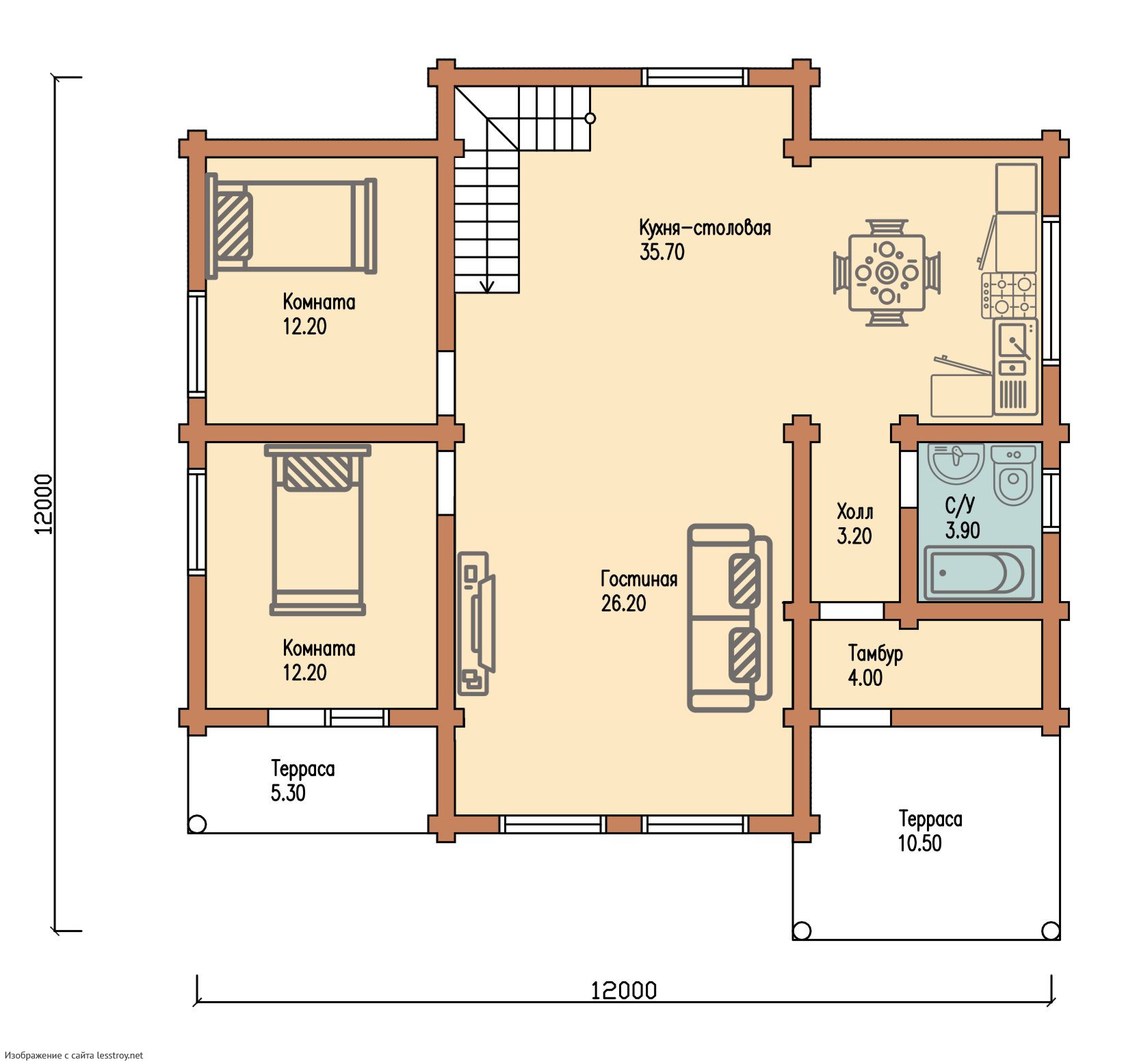
182 м 2
Размер дома:
12x12
Этажей:
2
Спален:
4
Санузел:
0
Гараж:
Нет
Баня:
Нет
Терраса:
Нет
Панорамные окна:
Нет
Мастер-спальня:
Нет
О проекте
Коттедж с продуманной логикой, вдохновлённый подходом к эргономике.В этом доме — 195 м² по-настоящему полезной площади. Крыша из рубероид подчёркивает современный облик дома. Архитектура выполнена в стиле дома в стиле русский. Двухэтажная грамотная планировка делает зонирование более логичным.Характеристики
- Общая площадь: 182 м2
- Количество этажей: 2
- Стиль, разновидность: Дома в стиле Русский
- Форма: Прямоугольные дома
- Тип кровли: Дома с многощипцовой крышей
- Отделка: Без отделки
- Размер: 12x12
Отправьте свои контакты и мы расчитаем вам смету
Скорее всего вам подойдут следующие проекты домов:
Дом подходит для:
Дом подходит для:
Проект двухэтажного дома Дом из профилированного бруса сечением 190*120
Семья с двумя детьми
Дом подходит для:
Дом подходит для:












