Проект двухэтажного дома Майрхофен
Площадь
196 м 2
Размер дома:
Этажей:
2
Спален:
4
Санузел:
0
Гараж:
Нет
Баня:
Нет
Терраса:
Нет
Панорамные окна:
Нет
Мастер-спальня:
Нет
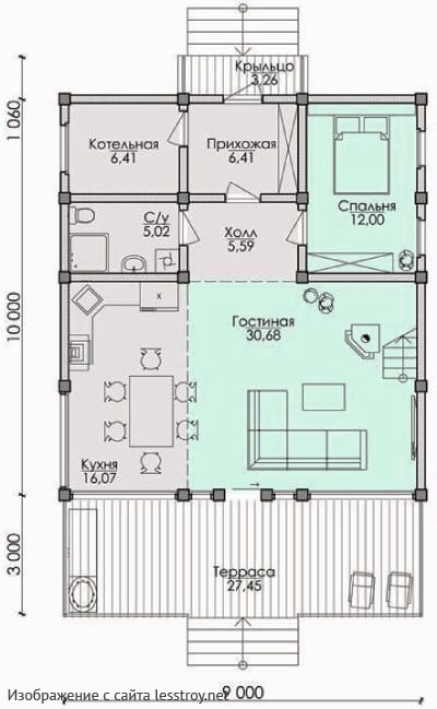
О проекте
Пространство, где функциональность встречает красоту: удобные планировки, модный дизайн и атмосфера для счастливой жизни. Чёткая логика планировки на 114 м². Материал кровли — битумная черепица, что добавляет зданию индивидуальность. Наличие 3 спальни удовлетворит запросы семьи с детьми. Кирпича делает дом надёжным при любой погоде.Характеристики
- Общая площадь: 196 м2
- Количество этажей: 2
- Стиль, разновидность: Дома в стиле Фахверк
- Форма: Прямоугольные дома
- Тип кровли: Дома с мансардной крышей
- Отделка: Без отделки
Отправьте свои контакты и мы расчитаем вам смету
Скорее всего вам подойдут следующие проекты домов:
Дом подходит для:
Дом подходит для:
Дом подходит для:














