Проект одноэтажного дома Одноэтажный дом из газоблоков ГБ-150
Площадь
149 м 2
Размер дома:
Этажей:
1
Спален:
3
Санузел:
0
Гараж:
Нет
Баня:
Нет
Терраса:
Нет
Панорамные окна:
Нет
Мастер-спальня:
Нет
О проекте
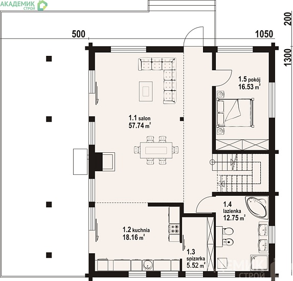
Архитектура дома показывает, что удобство может быть эстетичным.Дом из газобетона площадью 149 м² сочетает в себе надежность и современный дизайн. Просторная гостиная и кухня-столовая объединены для удобства. Большие окна наполняют интерьер естественным светом. Участок вокруг дома подходит для сада или детской площадки.Характеристики
- Общая площадь: 149 м2
- Количество этажей: 1
- Стиль, разновидность: Дома в ином стиле
- Форма: Прямоугольные дома
- Тип кровли: Дома с многощипцовой крышей
- Отделка: Без отделки
Отправьте свои контакты и мы расчитаем вам смету
Скорее всего вам подойдут следующие проекты домов:
Проект одноэтажного дома Дом id-112368
Семья с одним ребенком
Дом подходит для:
Дом подходит для:
Проект одноэтажного дома Дом id-115273
Семья с двумя детьми
Дом подходит для:
Дом подходит для:
Проект одноэтажного дома Дом id-115278
Семья с двумя детьми
Дом подходит для:
Дом подходит для:
























