Проект двухэтажного дома Проект дома 22-244
Площадь
190 м 2
Размер дома:
11x13
Этажей:
2
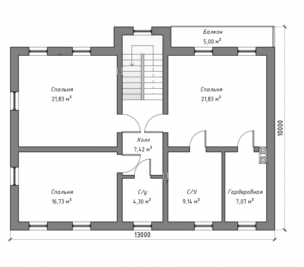
Спален:
4
Санузел:
0
Гараж:
Нет
Баня:
Нет
Терраса:
Нет
Панорамные окна:
Нет
Мастер-спальня:
Нет
О проекте
Солидный двухэтажный дом площадью 190 м² из газобетона — это простор и уют. Четыре спальни и качественные материалы создают идеальные условия. Большая площадь позволяет реализовать любые дизайнерские идеи. Проект подойдет для тех, кто ценит масштаб. Идеальный дом для жизни с комфортом.Характеристики
- Общая площадь: 190 м2
- Количество этажей: 2
- Стиль, разновидность: Дома в ином стиле
- Форма: Квадратные дома
- Тип кровли: Дома с многощипцовой крышей
- Отделка: Без отделки
- Размер: 11x13
Отправьте свои контакты и мы расчитаем вам смету
Скорее всего вам подойдут следующие проекты домов:
Проект двухэтажного дома Дом id-36007
Семья с двумя детьми
Дом подходит для:
Дом подходит для:
Проект двухэтажного дома Дом id-62540
Семья с двумя детьми
Дом подходит для:
Дом подходит для:
Проект двухэтажного дома Дом id-77550
Для большой семьи
Дом подходит для:
Дом подходит для:


























