Проект двухэтажного дома С-160
Дом подходит для:
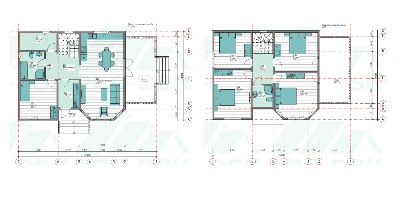
Площадь
160 м 2
Размер дома:
13.2х8.5
Этажей:
2
Спален:
5
Санузел:
2
Гараж:
Нет
Баня:
Нет
Терраса:
Нет
Панорамные окна:
Нет
Мастер-спальня:
Нет
Планировка
Фасады
О проекте
В этом доме площадью 160 м² пространство поет, а стены обнимают, создавая ощущение тепла и защищенности. Жилая площадь 134 м² идеально подходит для семьи с одним ребенком, предлагая уют и практичность. Каркас добавляет интерьеру естественности и добротности, делая его гармоничным и живым. Здесь каждый уголок продуман для комфортной и спокойной жизни.Характеристики
- Общая площадь: 160 м2
- Жилая площадь: 134 м2
- Количество этажей: 2
- Гараж: нет
- Площадь кровли: 164 м2
- Отделка: Без отделки
- Фундамент: Дома со свайным фундаментом
Материалы и перечень работ
- Сваи забивные железобетонные 150х150х3000, усиленные армированием конструкции; оголовок 200х200 мм
- Двойная горизонтальная гидроизоляция: гидростеклоизол
- Брус обрезной 150х200 мм Сетка оцинкованная металлическая для защиты от грызунов
- Балки усиленные: доска обрезная 50х200 мм
- Балки усиленные: строганная доска камерной сушки 45х195 мм
- Стойки, диагональные усиления стен: строганная доска камерной сушки 45х145 мм
- Обрешётка под перекрёстное утепление стен снаружи: строганный брусок камерной сушки 45х45 мм
- Металлочерепица GRAND LINE CLASSIC. Покрытие Satin. Толщина стали 0,5 мм
- Rehau Grazio 70 мм. Двухкамерный стеклопакет
- Дверь с терморазрывом. Производство Россия. В кол-ве 1 шт
- В стоимость не входит
- Имитация бруса. Покраска не включена
- Вертикальные направляющие для вент. фасада: строганный брусок камерной сушки 40х40 мм
- Внутренние стены и перегородки: Гипсокартонный лист (ГКЛ) 9,5 мм в 2 слоя с перекрытием швов (без шпаклевки швов) по обрешетке из сухой доски
- Подготовка под натяжной потолок обрешетка из сухой строганной доски Цементно-стружечная плита (ЦСП) толщиной 20 мм по обрешетке из сухой доски все помещения
- Сваи забивные железобетонные 150х150х3000, усиленные армированием конструкции; оголовок 200х200 мм
- Двойная горизонтальная гидроизоляция: гидростеклоизол
- Брус обрезной 150х200 мм Сетка оцинкованная металлическая для защиты от грызунов
- Балки усиленные: доска обрезная 50х200 мм
- Балки усиленные: строганная доска камерной сушки 45х195 мм
- Стойки, диагональные усиления стен: строганная доска камерной сушки 45х145 мм
- Обрешётка под перекрёстное утепление стен снаружи: строганный брусок камерной сушки 45х45 мм
- Металлочерепица GRAND LINE CLASSIC. Покрытие Satin. Толщина стали 0,5 мм
- Rehau Grazio 70 мм. Двухкамерный стеклопакет
- Дверь с терморазрывом. Производство Россия. В кол-ве 1 шт
- В стоимость не входит
- Имитация бруса. Покраска не включена
- Вертикальные направляющие для вент. фасада: строганный брусок камерной сушки 40х40 мм
- Внутренние стены и перегородки: Гипсокартонный лист (ГКЛ) 9,5 мм в 2 слоя с перекрытием швов (без шпаклевки швов) по обрешетке из сухой доски
- Подготовка под натяжной потолок обрешетка из сухой строганной доски Цементно-стружечная плита (ЦСП) толщиной 20 мм по обрешетке из сухой доски все помещения
Что еще входит в стоимость:
Отправьте свои контакты и мы расчитаем вам смету
Скорее всего вам подойдут следующие проекты домов:
Дом подходит для:
Проект двухэтажного дома Проект 1240 - финский каркасный дом с мансардным этажом
Для большой семьи
Дом подходит для:
Дом подходит для:
Дом подходит для:













