Проект двухэтажного дома Сегежа
Площадь
167 м 2
Размер дома:
Этажей:
2
Спален:
3
Санузел:
0
Гараж:
Нет
Баня:
Нет
Терраса:
Нет
Панорамные окна:
Нет
Мастер-спальня:
Нет
О проекте
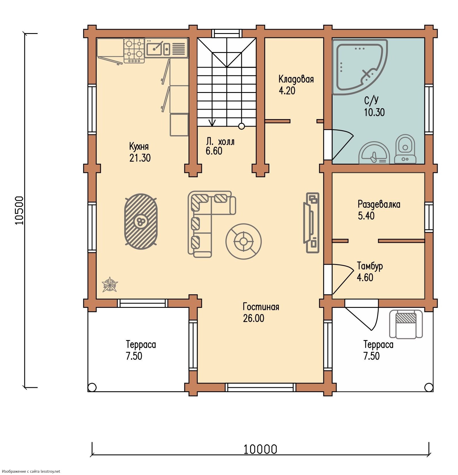
Чистые линии и гармоничные пропорции создают ощущение порядка и умиротворения.Общее пространство 57 м² вдохновляет на создание уюта. Наличие 2 спальни удовлетворит запросы семьи с детьми. Выбор каркаса обусловлен его теплоизоляционными свойствами. В качестве кровли использована металлочерепица — материал, проверенный временем.Характеристики
- Общая площадь: 167 м2
- Количество этажей: 2
- Стиль, разновидность: Дома в стиле Русский
- Форма: Прямоугольные дома
- Тип кровли: Дома с многощипцовой крышей
- Отделка: Без отделки
Отправьте свои контакты и мы расчитаем вам смету
Скорее всего вам подойдут следующие проекты домов:
Дом подходит для:
Дом подходит для:
Проект двухэтажного дома Дом из профилированного бруса сечением 190*120
Семья с двумя детьми
Дом подходит для:
Дом подходит для:












