Проект одноэтажного дома Сибиряк
Дом подходит для:
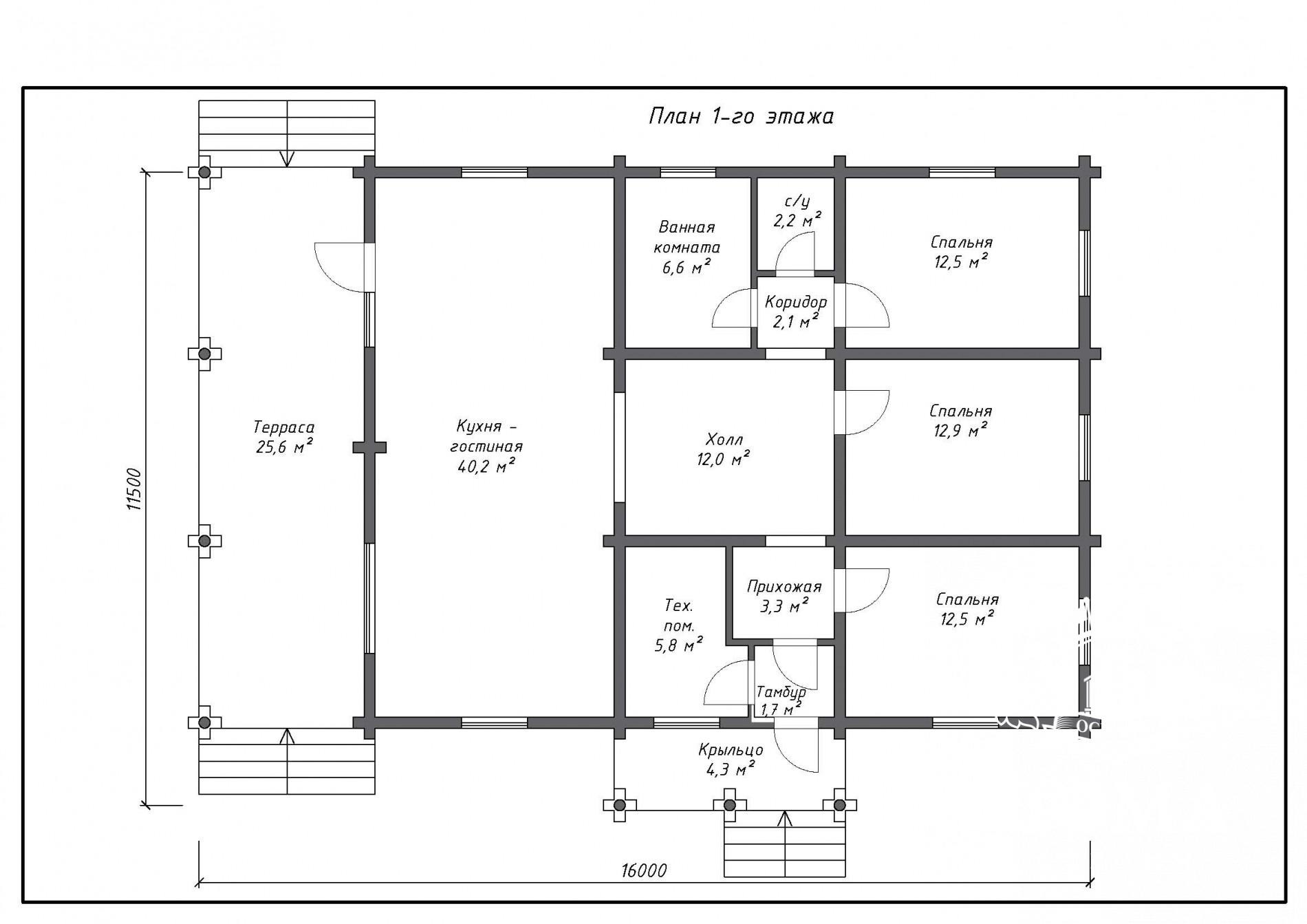
Площадь
141 м 2
Размер дома:
12x16
Этажей:
1
Спален:
3
Санузел:
1
Гараж:
Нет
Баня:
Нет
Терраса:
Да
Панорамные окна:
Нет
Мастер-спальня:
Нет
Планировка
Фасады
О проекте
Традиционный дом площадью 141 м² с жилыми 117 м² создан для семьи с двумя детьми. Бревенчатые стены дарят тепло и натуральность, а рубероид обеспечивает надежность. Пространство наполнено светом и уютом, создавая атмосферу домашнего очага. Здесь все продумано для размеренной и спокойной жизни.Характеристики
- Общая площадь: 141 м2
- Жилая площадь: 117 м2
- Количество этажей: 1
- Гараж: нет
- Площадь кровли: 148 м2
- Форма: Квадратные дома
- Тип кровли: Дома с двускатной крышей
- Пристрой: Дома с верандой
- Отделка: Без отделки
Материалы и перечень работ
- Нет
- Лес зимней заготовки: Диаметр в вершине бревна - от 240 мм.
- Сруб обработан антисептиком Prosept Universal.
- Межэтажные перекрытия (брус 100х200 мм).
- Межвенцовый утеплитель на выбор.
- Гидроизоляция под первый венец.
- Стропила (доска 50х200 мм).
- Обрешетка под рубероид (доска 25х150 мм).
- В стоимость не входит
- В стоимость не входит
- В стоимость не входит
- Нет
- Лес зимней заготовки: Диаметр в вершине бревна - от 240 мм.
- Сруб обработан антисептиком Prosept Universal.
- Межэтажные перекрытия (брус 100х200 мм).
- Межвенцовый утеплитель на выбор.
- Гидроизоляция под первый венец.
- Стропила (доска 50х200 мм).
- Обрешетка под рубероид (доска 25х150 мм).
- В стоимость не входит
- В стоимость не входит
- В стоимость не входит
Что еще входит в стоимость:
Отправьте свои контакты и мы расчитаем вам смету
Скорее всего вам подойдут следующие проекты домов:
Проект одноэтажного дома ОДНОЭТАЖНЫЙ КОТТЕДЖ К-169-ПК ПОД КЛЮЧ
Семья с двумя детьми
Дом подходит для:
Дом подходит для:
Дом подходит для:
Проект одноэтажного дома Одноэтажный деревянный дом Гостиный двор-113
Семья с одним ребенком
Дом подходит для:
Дом подходит для:








