Проект двухэтажного дома Вельс
Площадь
265 м 2
Размер дома:
12x13
Этажей:
2
Спален:
4
Санузел:
0
Гараж:
Нет
Баня:
Нет
Терраса:
Нет
Панорамные окна:
Нет
Мастер-спальня:
Нет
О проекте
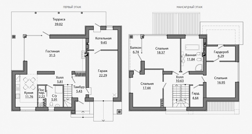
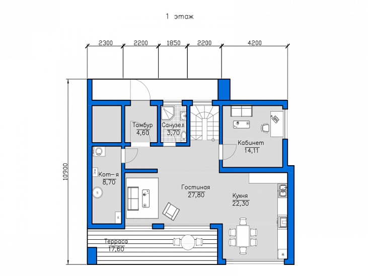
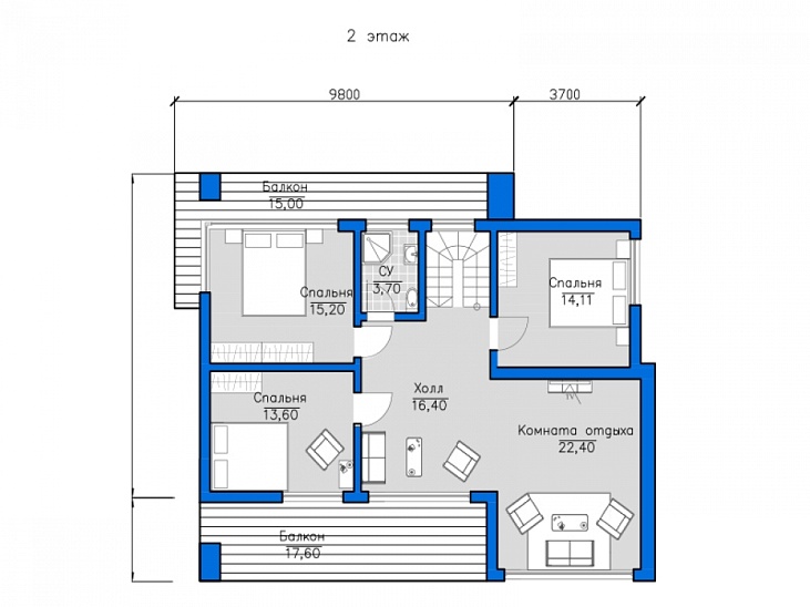
Гармония форм и пространства в каждом квадратном метре. 124 м² — и ни один метр не пропадает зря. Выбор бруса обусловлен его теплоизоляционными свойствами. Проект включает 3 спальни — удобно для семьи. Двухэтажная грамотная планировка обеспечивает практичное распределение комнат.Характеристики
- Общая площадь: 265 м2
- Количество этажей: 2
- Стиль, разновидность: Дома в ином стиле
- Тип кровли: Дома с двускатной крышей
- Отделка: Без отделки
- Размер: 12x13
Отправьте свои контакты и мы расчитаем вам смету
Скорее всего вам подойдут следующие проекты домов:
Дом подходит для:
Дом подходит для:
Дом подходит для:












