Проект одноэтажного дома Заветное
Дом подходит для:
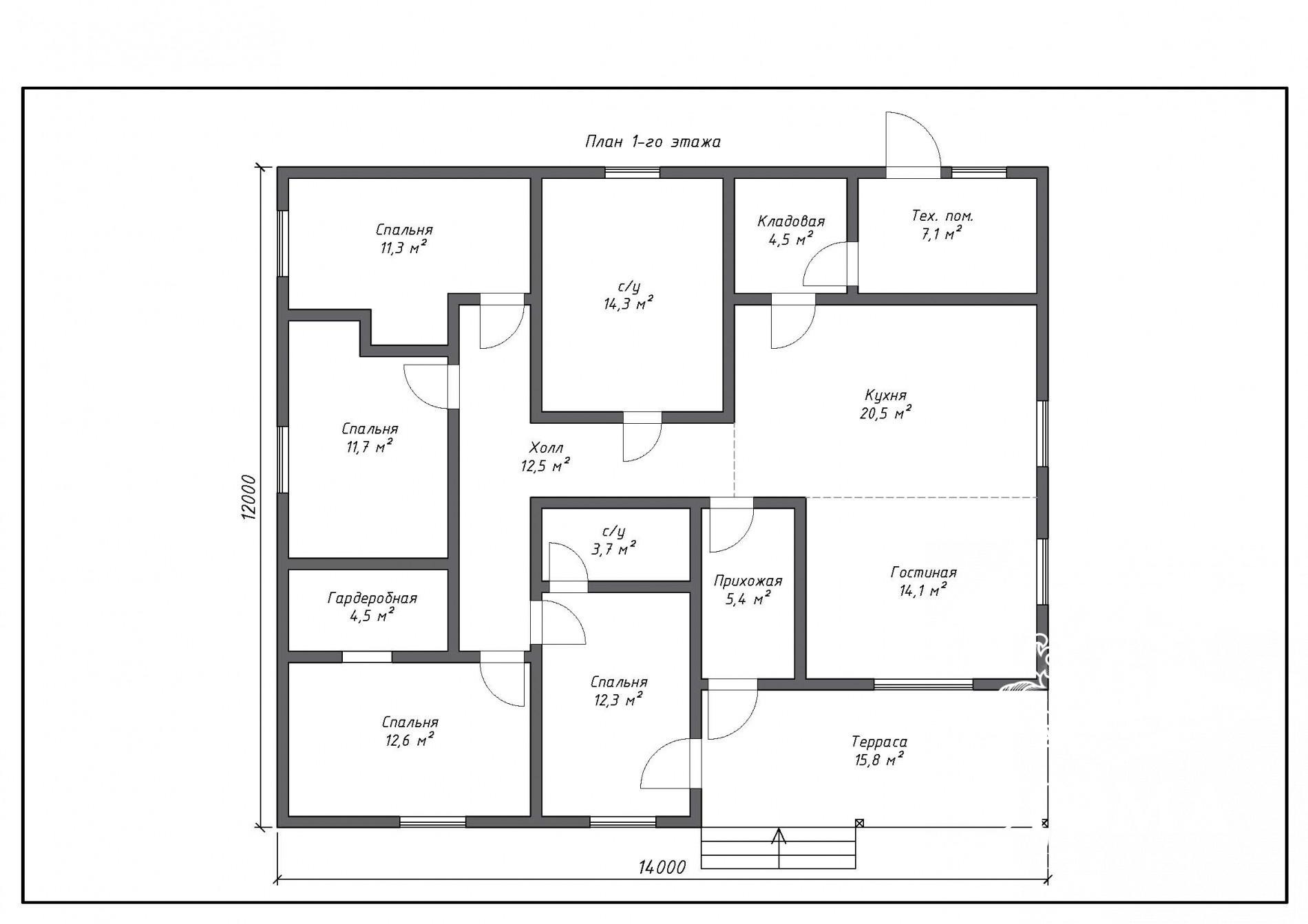
Площадь
168 м 2
Размер дома:
12x14
Этажей:
1
Спален:
4
Санузел:
2
Гараж:
Нет
Баня:
Нет
Терраса:
Да
Панорамные окна:
Нет
Мастер-спальня:
Нет
Планировка
Фасады
О проекте
Просторный дом площадью 168 м² с жилой площадью 139 м² идеален для большой семьи. Каркасные стены обеспечивают тепло и легкость, а профнастил добавляет долговечности. Интерьеры отличаются продуманной планировкой и светлым наполнением. Это дом, где каждая деталь создана для комфорта и уюта.Характеристики
- Общая площадь: 168 м2
- Жилая площадь: 139 м2
- Количество этажей: 1
- Гараж: нет
- Площадь кровли: 170 м2
- Форма: Квадратные дома
- Тип кровли: Дома с четырехскатной крышей (вальмовой)
- Пристрой: Дома с террасой
- Отделка: Без отделки
- Фундамент: Дома со свайным фундаментом
Материалы и перечень работ
- Винтовые сваи длиной 2500 мм. под ключ
- Полы: утепление 150 мм, доска пола 35 мм. Обработка огнебиозащитой нижнего конструктива
- Стены: каркас 150 мм., утепление 150 мм, отделка внутри и снаружи вагонкой 12,5 мм
- Перегородки: Перегородки - каркас 100 мм, отделка вагонкой 12,5 мм, утепление - 100 мм
- Чердачное перекрытие: утепление 150 мм, отделка вагонкой 12,5 мм
- Кровля: Оцинкованный профнастил
- В стоимость не входит
- В стоимость не входит
- В стоимость не входит
- Винтовые сваи длиной 2500 мм. под ключ
- Полы: утепление 150 мм, доска пола 35 мм. Обработка огнебиозащитой нижнего конструктива
- Стены: каркас 150 мм., утепление 150 мм, отделка внутри и снаружи вагонкой 12,5 мм
- Перегородки: Перегородки - каркас 100 мм, отделка вагонкой 12,5 мм, утепление - 100 мм
- Чердачное перекрытие: утепление 150 мм, отделка вагонкой 12,5 мм
- Кровля: Оцинкованный профнастил
- В стоимость не входит
- В стоимость не входит
- В стоимость не входит
Что еще входит в стоимость:
Отправьте свои контакты и мы расчитаем вам смету
Скорее всего вам подойдут следующие проекты домов:
Дом подходит для:
Дом подходит для:
Дом подходит для:














