Проект двухэтажного дома LAGOM 5
Дом подходит для:
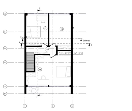
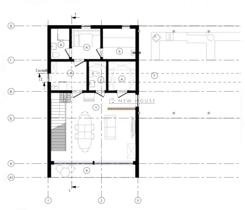
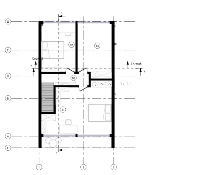
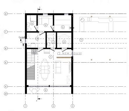
Площадь
166 м 2
Размер дома:
11 х 14,2 х 7
Этажей:
2
Спален:
3
Санузел:
2
Гараж:
Нет
Баня:
Нет
Терраса:
Нет
Панорамные окна:
Нет
Мастер-спальня:
Нет
Планировка
Характеристики
- Общая площадь: 166 м2
- Жилая площадь: 124 м2
- Количество этажей: 2
- Гараж: нет
- Площадь кровли: 170 м2
- Отделка: Без отделки
- Фундамент: Дома со свайно-винтовым фундаментом
Материалы и перечень работ
- Металлические сваи длиной 2500 мм с двухкомпонентным покрытием, диаметр ствола сваи 108 мм, диаметр лопасти 300 мм, толщина стенки трубы сваи 4 мм, толщина лопасти сваи 5 мм, размер оголовка сваи 200х200 мм; монтаж, пробное завинчивание
- ЗАВОДСКОЙ КОМПЛЕКТ КАРКАСА PRECUT из усиленных двутавровых балок со стойками из бруса камерной сушки и ребром жёсткости из ОСП-3 12 мм, обшитый МДВП Белтермо ТОП 25 мм "шип-паз"
- ЦОКОЛЬНОЕ ПЕРЕКРЫТИЕ из БДКУ, подшив оцинкованной сеткой
- КРОВЛЯ клик-фальц Grand Line серии Pro с матовым покрытием Drap 0,45 мм с пленкой на замках RAL 7024
- Водосточная система
- ОКНА И ДВЕРИ системы из 6-камерного бельгийского ПВХ профиля Deceuninck Favorit Space 76 мм с трехконтурным уплотнением, цветного с обеих сторон, фурнитурой и многофункциональными энергосберегающими 2-камерными стеклопакетами (3 стекла) с заполнением Ar (газ Аргон)
- В стоимость не входит
- ЧИСТОВАЯ ОТДЕЛКА ВНЕШНИХ СТЕН - боковые фасады клик-фальц Grand Line серии Pro с матовым покрытием Drap 0,45 мм с пленкой на замках RAL 7024, торцевые фасады - из скандинавской тонкопиленной доски с заводской многослойной покраской, цвет на выбор Заказчика
- ГИДРО-ВЕТРОЗАЩИТА на крыше ветро-влагозащитная супердиффузионная мембрана с проклейкой швов скотчем DELTA
- Металлические сваи длиной 2500 мм с двухкомпонентным покрытием, диаметр ствола сваи 108 мм, диаметр лопасти 300 мм, толщина стенки трубы сваи 4 мм, толщина лопасти сваи 5 мм, размер оголовка сваи 200х200 мм; монтаж, пробное завинчивание
- ЗАВОДСКОЙ КОМПЛЕКТ КАРКАСА PRECUT из усиленных двутавровых балок со стойками из бруса камерной сушки и ребром жёсткости из ОСП-3 12 мм, обшитый МДВП Белтермо ТОП 25 мм "шип-паз"
- ЦОКОЛЬНОЕ ПЕРЕКРЫТИЕ из БДКУ, подшив оцинкованной сеткой
- КРОВЛЯ клик-фальц Grand Line серии Pro с матовым покрытием Drap 0,45 мм с пленкой на замках RAL 7024
- Водосточная система
- ОКНА И ДВЕРИ системы из 6-камерного бельгийского ПВХ профиля Deceuninck Favorit Space 76 мм с трехконтурным уплотнением, цветного с обеих сторон, фурнитурой и многофункциональными энергосберегающими 2-камерными стеклопакетами (3 стекла) с заполнением Ar (газ Аргон)
- В стоимость не входит
- ЧИСТОВАЯ ОТДЕЛКА ВНЕШНИХ СТЕН - боковые фасады клик-фальц Grand Line серии Pro с матовым покрытием Drap 0,45 мм с пленкой на замках RAL 7024, торцевые фасады - из скандинавской тонкопиленной доски с заводской многослойной покраской, цвет на выбор Заказчика
- ГИДРО-ВЕТРОЗАЩИТА на крыше ветро-влагозащитная супердиффузионная мембрана с проклейкой швов скотчем DELTA
Что еще входит в стоимость:
Отправьте свои контакты и мы расчитаем вам смету
Скорее всего вам подойдут следующие проекты домов:
Дом подходит для:
Проект двухэтажного дома Проект 1240 - финский каркасный дом с мансардным этажом
Для большой семьи
Дом подходит для:
Дом подходит для:
Дом подходит для:












